Appartement à vendre - 1681 Hennens
Pourquoi vous aimerez ce bien
Vue imprenable sur les Alpes
Cuisine ouverte spacieuse
Finitions modernes partout
Organiser une visite
Réserver une visite aujourd'hui !
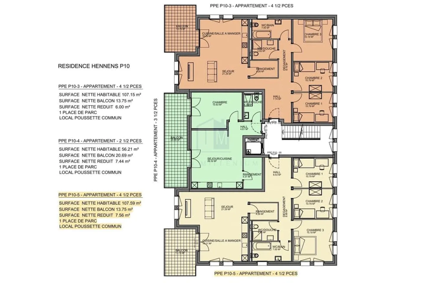
Un des dernier joli 4 œ pièces de style à saisir !
Un des dernier 2 appartements de Style de 4 œ pièces !
Bienvenue dans le charmant village de Billens-Hennens, un endroit paisible et agréable à vivre avec une vue imprenable sur les Alpes ainsi que sur la ville historique de Romont.
Ce bel appartement de 4 œ pièces, plein sud, est spacieux et lumineux avec une cuisine ouverte ainsi qu'avec un jolie grand balcon.
La disposition intelligente de cet appartement offre une sensation d'espace et un confort unique. Dès que vous franchissez la porte, vo...
Détails du bien
- Disponible à partir de
- 01.11.2025
- Pièces
- 4.5
- Année de construction
- 2025
- Surface habitable
- 114 m²
- Surface utilisable
- 129 m²
- Étage
- 1er



