Appartement à vendre - 1678 Siviriez
Pourquoi vous aimerez ce bien
Construction moderne et matériaux de qualité
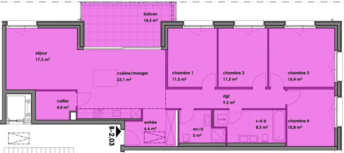
Grand balcon de 14,5 m²
Cadre verdoyant et paisible
Organiser une visite
Réserver une visite aujourd'hui !
Spacieux appartement neuf de 5,5 pièces dans un cadre verdoyant
Découvrez ce magnifique appartement prévu dans un village à proximité de Romont, dans un environnement calme et verdoyant.
De construction moderne, il pourra vous accueillir dès le printemps 2026.
D'une surface habitable généreuse de 127,3 m², avec 4 chambres, ce beau 5.5 pièces offre une ambiance chaleureuse et accueillante.
Il est réalisé dans un style contemporain, élaboré avec des matériaux de haute qualité.
Idéal pour savourer votre café matinal ou vous détendre en fin de journée, un gran...
Détails du bien
- Disponible à partir de
- Sur accord
- Pièces
- 5.5
- Année de construction
- 2026
- Surface habitable
- 127 m²
- Surface utilisable
- 127 m²
- Étage
- 2ème



