Appartement à vendre - 1676 Chavannes-les-Forts
Pourquoi vous aimerez ce bien
Grand séjour lumineux avec balcon
Cuisine moderne ouverte
Terrasse privée dans suite parentale
Organiser une visite
Réserver une visite aujourd'hui !
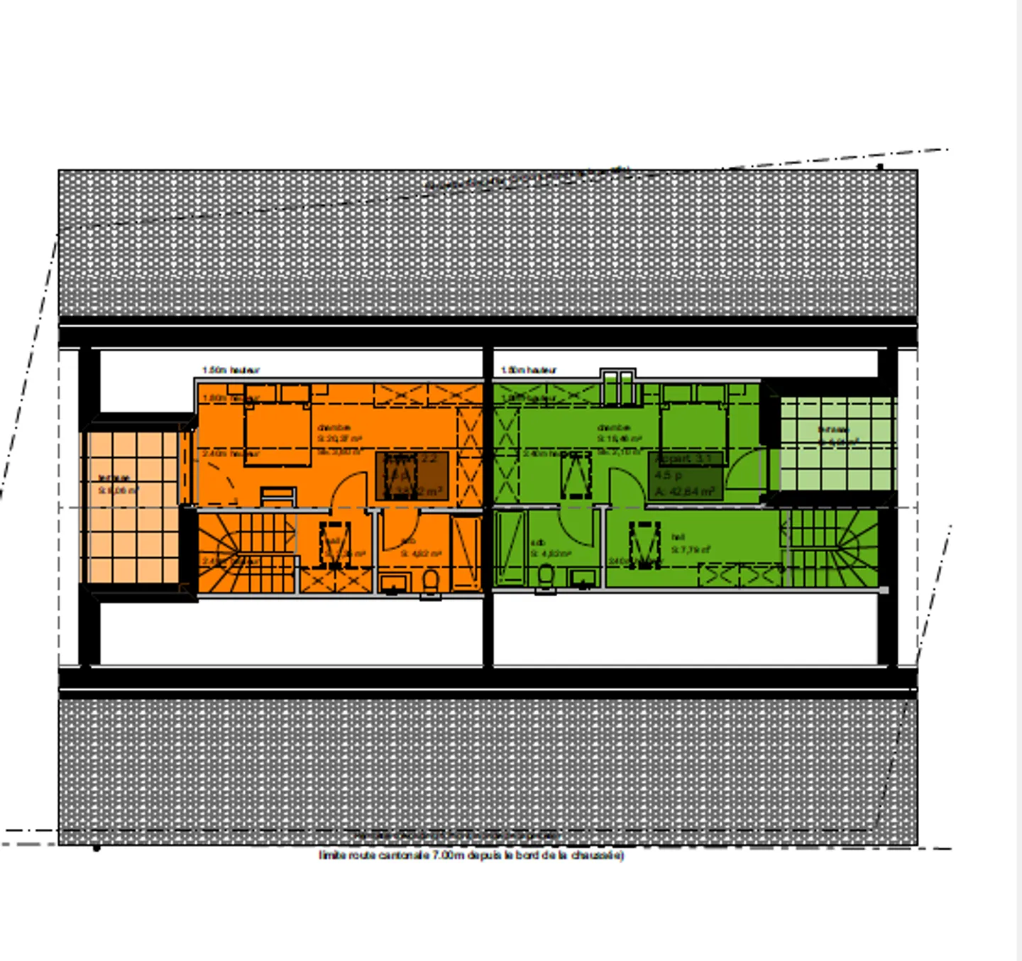
Magnifique duplex 4.5 pièces - 153 m² - Terrasse & balcon à Chavannes-les-Forts
Situé dans un petit immeuble résidentiel de seulement 8 appartements, actuellement en cours de finition, ce superbe duplex (orange) séduit par ses volumes généreux, sa belle luminosité et son confort moderne, dans un environnement calme et verdoyant.
- Grand séjour / salle à manger lumineux avec accès au balcon
- Cuisine moderne ouverte
- 3 chambres, dont une spacieuse suite parentale à l'étage avec terrasse privée
- 2 salles de bains
- Distribution idéale entre espace jour et espace nuit
- Cave...
Détails du bien
- Disponible à partir de
- 01.01.1970
- Pièces
- 4.5
- Année de construction
- 2025
- Surface habitable
- 144 m²
- Surface utilisable
- 153 m²
- Étage
- 3ème



