Duplex à vendre - 1660 Château-d'Oex
Pourquoi vous aimerez ce bien
Vue imprenable sur les montagnes
Poêle à bois confortable
Accès à la cuisine partagée
Organiser une visite
Réserver une visite avec Nadia aujourd'hui !
Agréable duplex en attique à vendre à Château-d'Oex
Charmant appartement en duplex à vendre dans quartier surplombant le village de Château-d'Oex !
Il est situé dans une petite PPE de 3 appartements dans un chalet traditionnel en bois et il offre une belle vue sur les montagnes depuis ses 2 balcons.
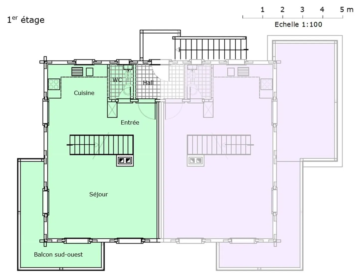
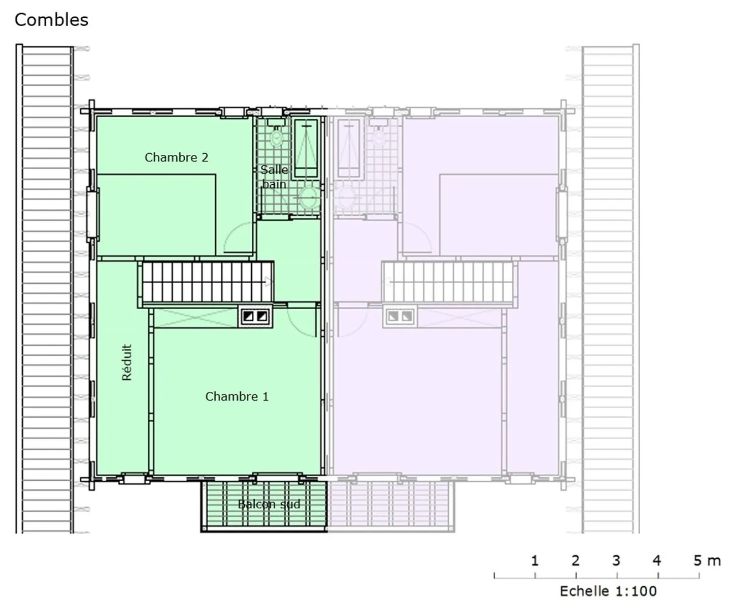
Voici sa répartition:
- accès par une cage d'escaliers extérieure
- hall d'entrée commun
- une cuisine agencée
- un salon avec poêle à bois et son balcon d'angle
- un wc visiteurs
- 2 chambres à coucher (dont une chambre avec balcon)
- 1 salle de bain avec baignoire
De plus,...
Détails du bien
- Disponible à partir de
- Sur accord
- Pièces
- 3.5
- Année de construction
- 1986
- Volume du bâtiment
- 1135 m³
- Étages du bâtiment
- 3




