Appartement à vendre - Limbergstrasse 16, 8127 Forch
Pourquoi vous aimerez ce bien
Emplacement rural magnifique
Design moderne de haute qualité
Espaces extérieurs privés
Organiser une visite
Réserver une visite avec Gino aujourd'hui !
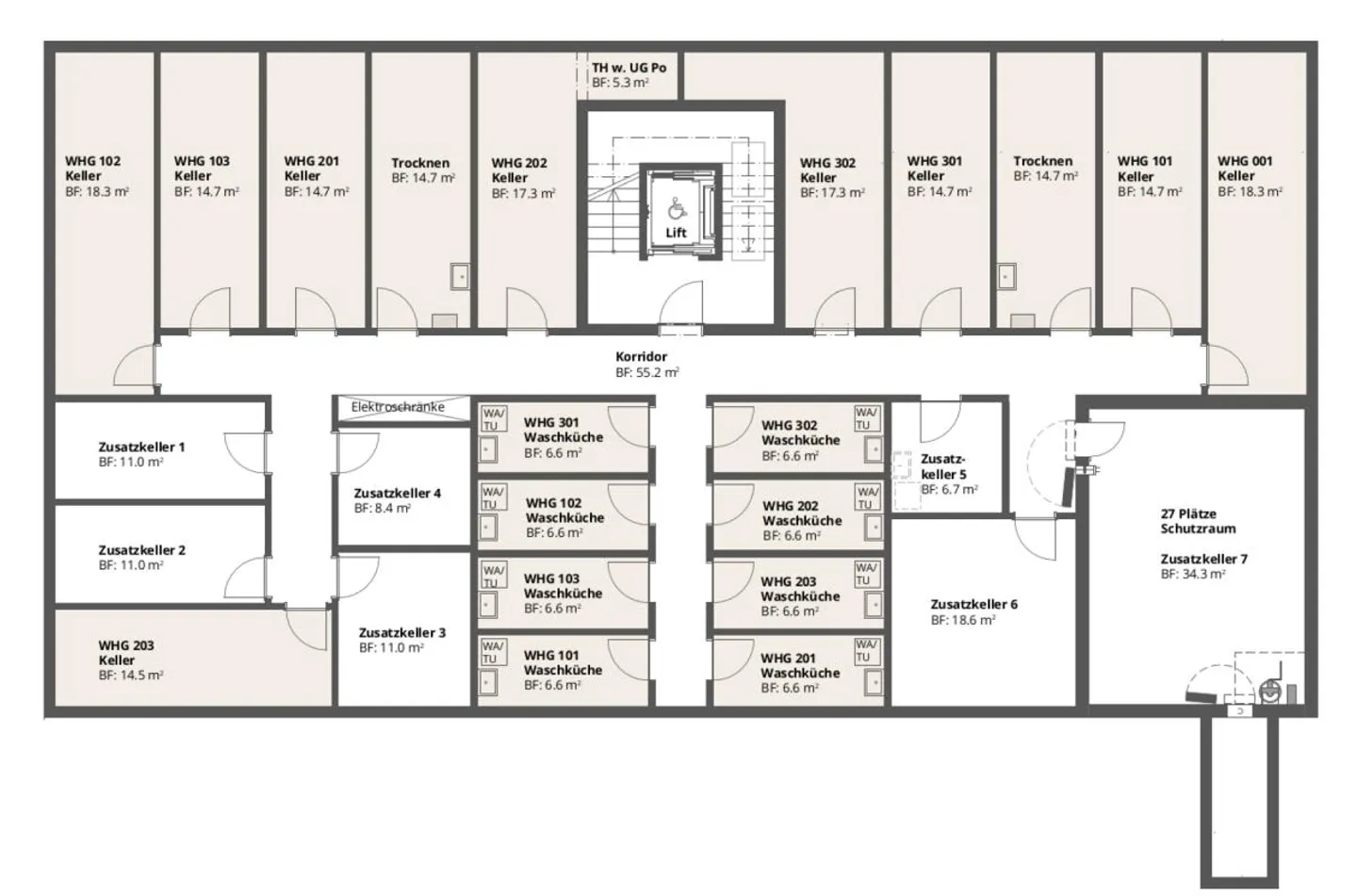
Le hameau de Limberg dans la commune lacustre de Küsnacht est pittoresque : niché dans des prairies, des champs et des forêts, et baigné de soleil à des hauteurs généralement exemptes de brouillard, mais à seulement quelques minutes en voiture de la ville de Zurich. Ici, un immeuble multifamilial avec un maximum de dix appartements en copropriété est en cours de construction, alliant une architecture rurale traditionnelle à un aménagement intérieur ultramoderne pour une qualité de vie élevée. Qu...
Détails du bien
- Disponible à partir de
- Sur accord
- Pièces
- 2.5
- Année de construction
- 2025
- Surface habitable
- 66 m²
- Surface du jardin
- 59 m²
- Surface de la terrasse
- 8 m²
- Étages du bâtiment
- 4

