Appartement à vendre - Limbergstrasse 16, 8127 Forch
Pourquoi vous aimerez ce bien
Emplacement rural magnifique
Design moderne de haute qualité
Espaces extérieurs privés
Organiser une visite
Réserver une visite avec Gino aujourd'hui !
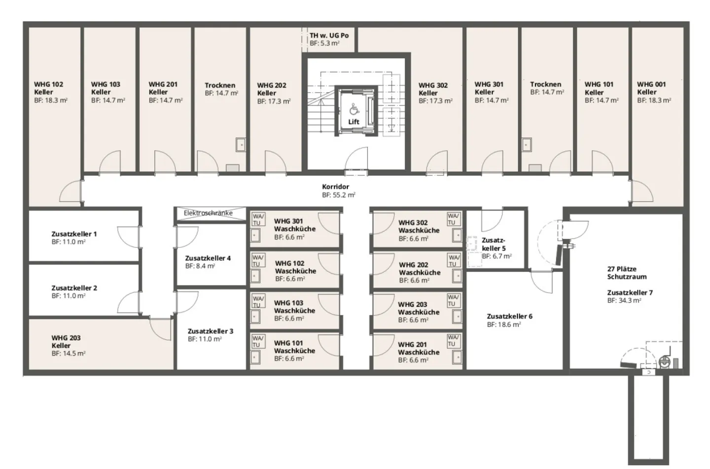
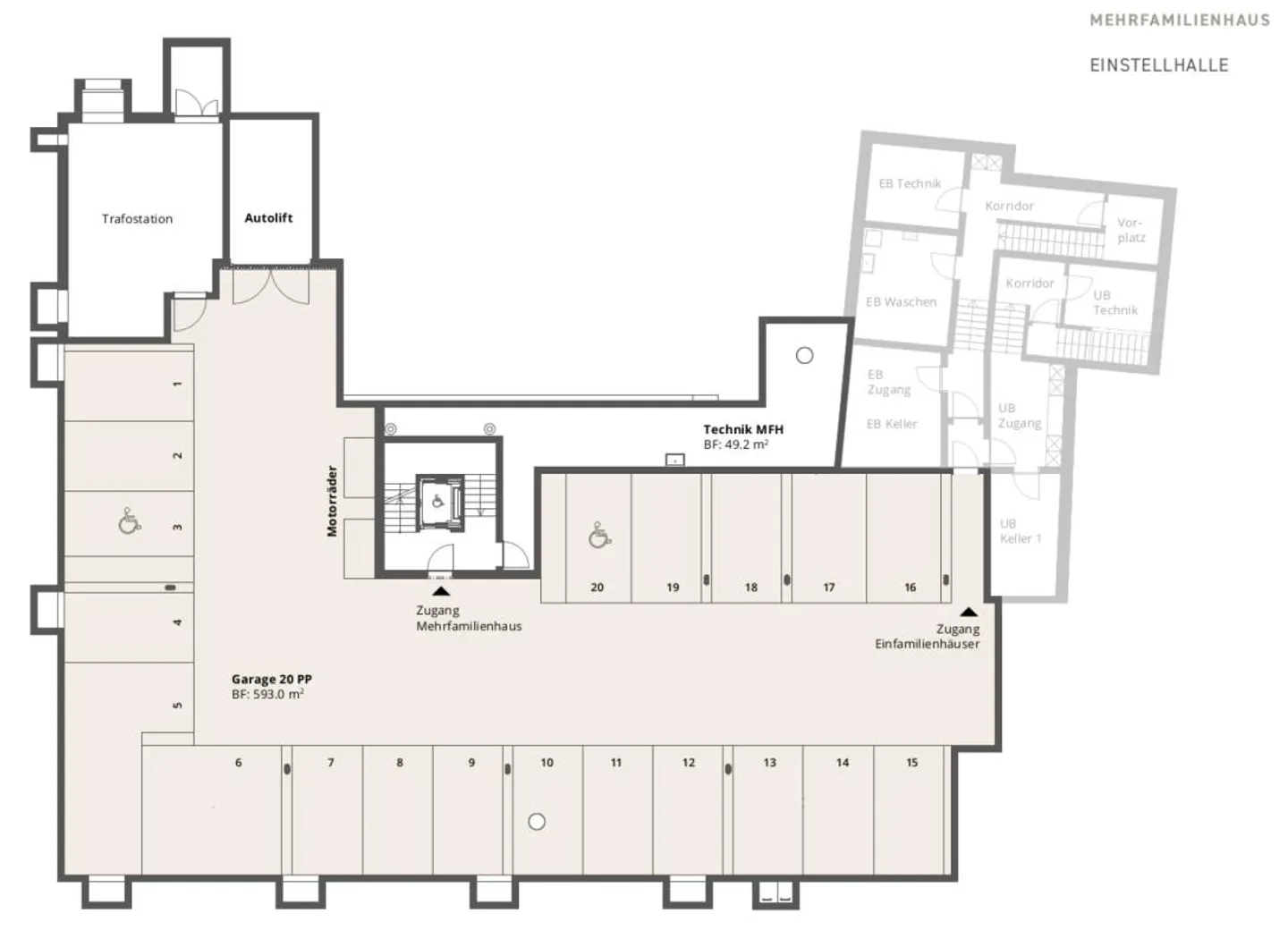
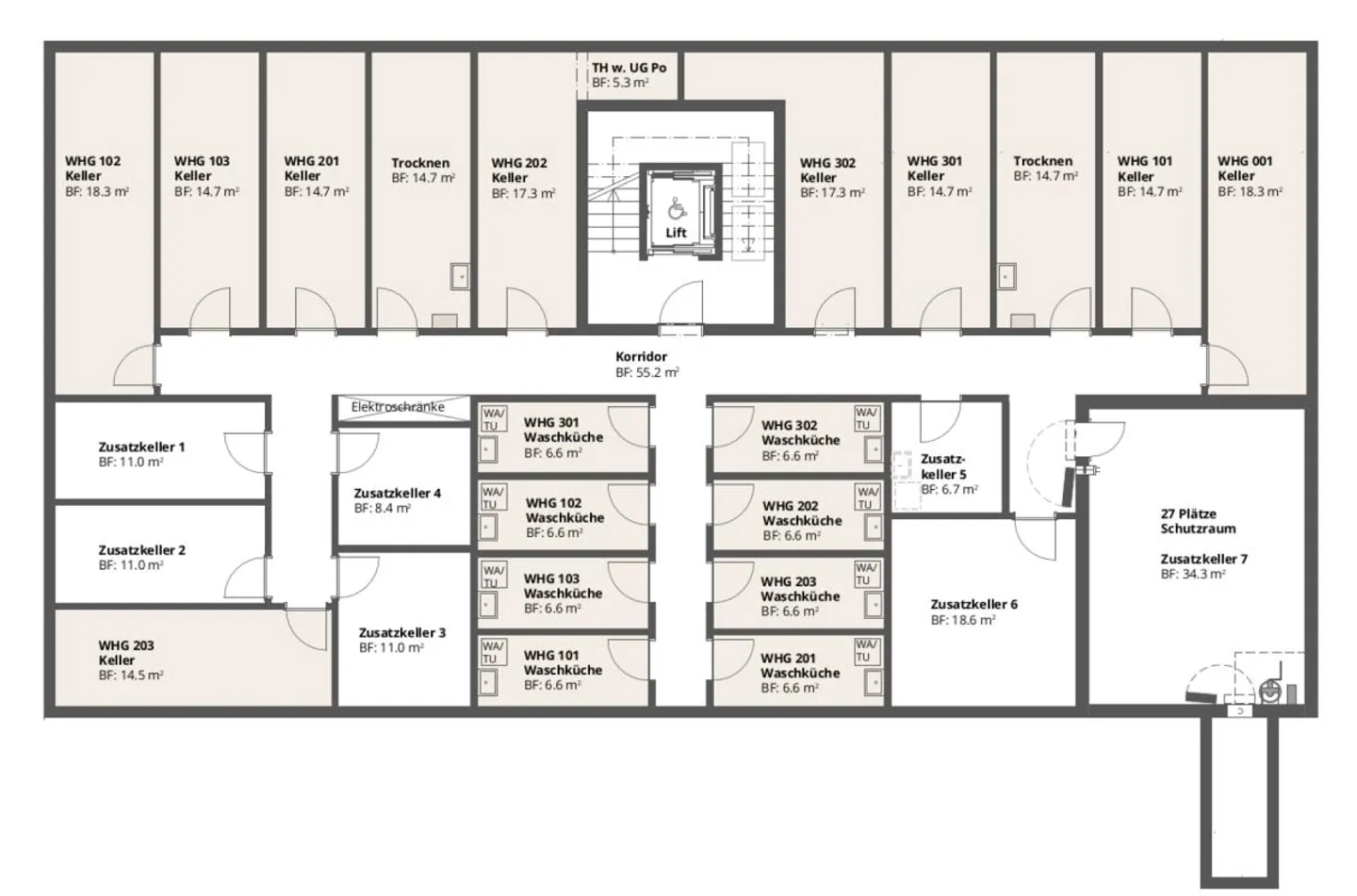
Le hameau de Limberg dans la commune de Küsnacht est pittoresque : niché dans des prairies, des champs et des forêts, et baigné de soleil à des hauteurs généralement exemptes de brouillard, tout en étant à seulement quelques minutes en voiture de la ville de Zurich. Ici, un immeuble collectif de maximum dix appartements en propriété est en cours de construction, alliant une architecture rurale traditionnelle à un aménagement intérieur ultramoderne pour une qualité de vie élevée. Que ce soit un s...
Détails du bien
- Disponible à partir de
- Sur accord
- Pièces
- 4.5
- Année de construction
- 2025
- Surface habitable
- 122 m²
- Surface du balcon
- 6 m²
- Étage
- 4ème
- Étages du bâtiment
- 4



