Appartement à vendre - Limbergstrasse 16, 8127 Forch
Pourquoi vous aimerez ce bien
Vues imprenables sur la nature
Espaces extérieurs privés
Design moderne et finitions de qualité
Organiser une visite
Réserver une visite avec Gino aujourd'hui !
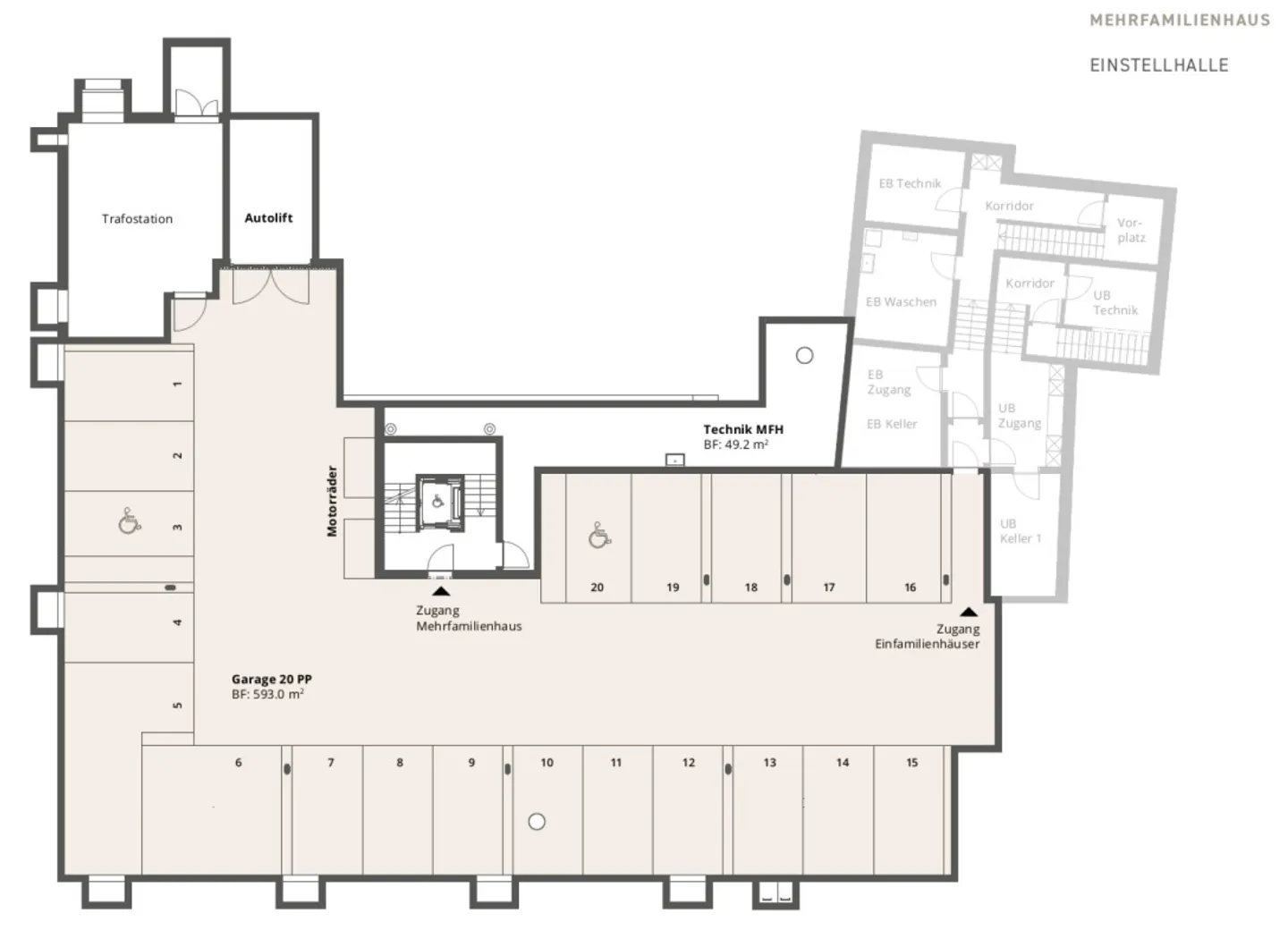
LE DÉBUT DE LA CONSTRUCTION EST EFFECTIF ! Haute qualité de vie : appartements neufs à proximité de la nature, du lac et de la ville
Le hameau de Limberg dans la commune lacustre de Küsnacht est pittoresque : niché dans des prairies, des champs et des forêts, et baigné de soleil à des hauteurs généralement exemptes de brouillard, mais à seulement quelques minutes en voiture de la ville de Zurich. Ici, un immeuble collectif de maximum dix appartements en copropriété est en construction, alliant une architecture rurale traditionnelle à un aménagement intérieur ultramoderne pour une haute qualité de vie.
Que ce soit un studio com...
Détails du bien
- Disponible à partir de
- 01.12.2026
- Pièces
- 4.5
- Année de construction
- 2025
- Surface habitable
- 122 m²
- Surface utilisable
- 131 m²
- Étage
- 4ème
- Étages du bâtiment
- 4



