Appartement à vendre - 1450 Ste-Croix
Pourquoi vous aimerez ce bien
Emplacement en centre-ville
Beaux parquets d'origine
Terrasse extérieure commune
Organiser une visite
Réserver une visite avec Florence aujourd'hui !
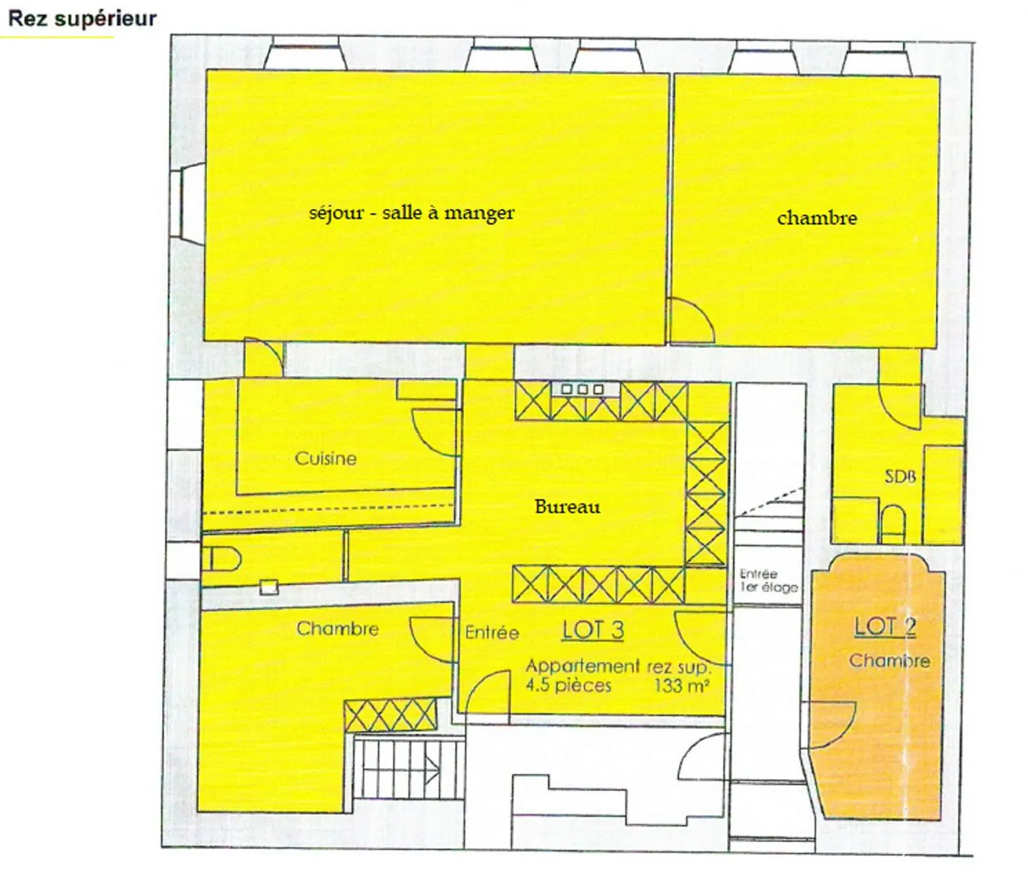
Appartement 4.5 pièces
Au coeur de Ste-Croix, super appartements idéalement situé.
Proche des transports, des commerces et des écoles
Un appartement à rafraichir de 143 m2 avec 4.5 ( y compris pièce indépendante ) potentiel de location 1750.-
L'immeuble a toujours été parfaitement entretenu ( chaudière remplacée en 2015, l'électricité refaite en 2015 )
Les appartements ont tous conservé leur beaux parquets et leurs belles cheminée mais certaines pièces pourraient être rafraichies.
Situation: Centre ville
Commodités: T...
Détails du bien
- Disponible à partir de
- Sur accord
- Pièces
- 4.5
- Surface habitable
- 143 m²



