Appartement à vendre - 1430 Orges
Pourquoi vous aimerez ce bien
Vue imprenable sur le lac
Jardins exclusifs pour copropriétaires
Finitions de qualité personnalisables
Organiser une visite
Réserver une visite aujourd'hui !
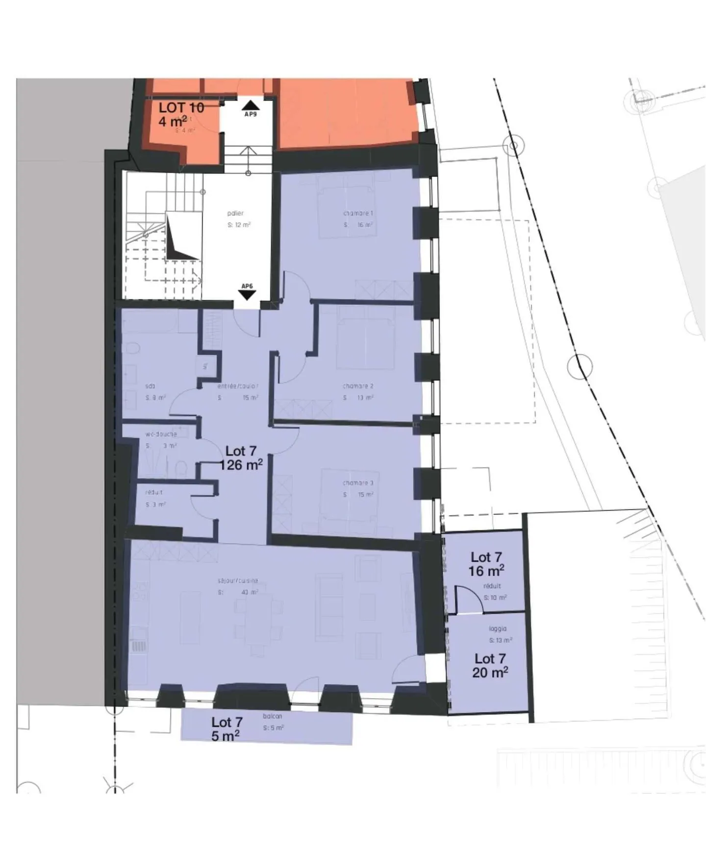
Nouvelle promotion - le chantier a démarré : appartement de 4.5 pièces avec balc
EN EXCLUSIVITE CHEZ BERNARD NICOD SA.
Découvrez la nouvelle promotion " Le domaine du Belvédère " qui offre une vue imprenable sur le lac de Neuchâtel et les Alpes.
Nichée dans le charmant village d'Orges, elle est orientée plein sud et offre un cadre de vie paisible et verdoyant à tous ses résidents.
Situé en bordure de zone agricole, ce projet comprend 8 appartements, une villa individuelle et un local commercial répartis dans 3 bâtiments distincts qui sauront garder le charme et l'authentici...
Détails du bien
- Disponible à partir de
- Sur accord
- Pièces
- 4.5
- Surface habitable
- 122 m²
- Surface utilisable
- 125 m²
- Étage
- 1er



