Duplex Charmant à Orny
Pourquoi vous aimerez ce bien
Architecture contemporaine
Grande galerie ouverte
Emplacement de choix
Organiser une visite
Réserver une visite aujourd'hui !
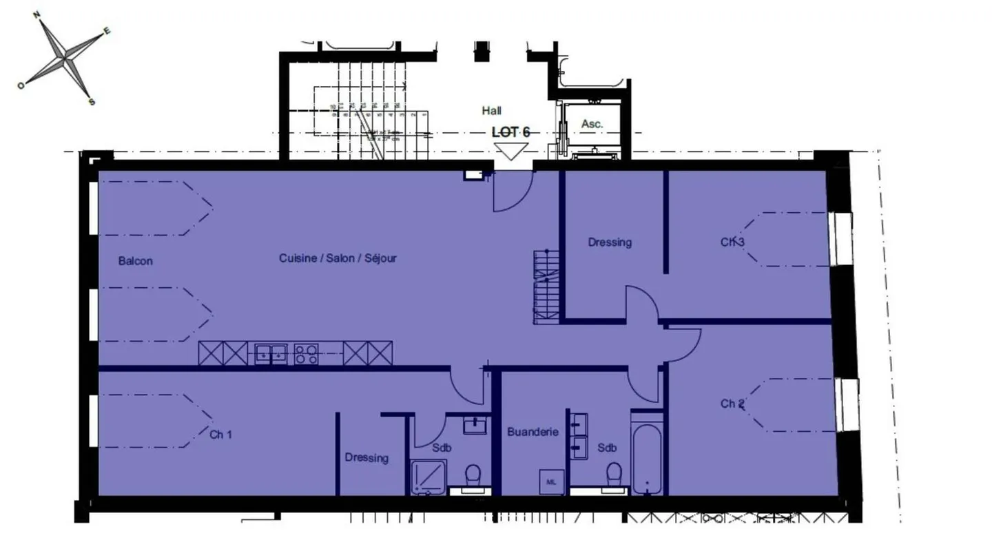
Duplex neuf 4.5 pièces avec gatelas
Opportunité à saisir !
Nous vous proposons le dernier appartement disponible dans une petite PPE totalisant 9 logements. Erigée au cœur du village d'Orny (la Sarraz), cette PPE bénéficie d'une architecture alliant lignes contemporaines et codes traditionnels tout en répondant aux standards énergétiques de premier ordre.
Situé dans les combles, cet appartement traversant d'environ 140 m² de surface habitable offre une exposition optimale et dispose d'une galer...
Détails du bien
- Disponible à partir de
- Sur accord
- Pièces
- 4.5
- Salles de bain
- 2
- Surface habitable
- 140 m²



