Appartement à vendre - 1223 Cologny
Pourquoi vous aimerez ce bien
Superbe terrasse de 39m2
Vaste séjour de 60m2
Accès direct à la piscine
Organiser une visite
Réserver une visite avec Laura aujourd'hui !
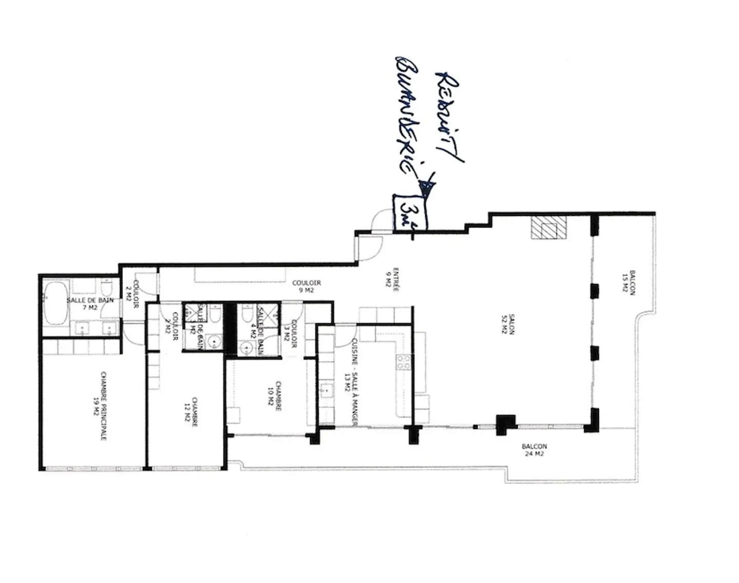
Appartement 5 pièces
Appartement d'exception avec vue sur les montagnes et le Jet d'eau
Situé à deux pas du centre-ville, ce superbe appartement séduit par ses volumes généreux, sa luminosité exceptionnelle et son cadre de vie privilégié.
Dès l'entrée, vous serez charmé par un vaste séjour d'environ 60m2 baigné de lumière, sublimé par une cheminée élégante et s'ouvrant sur un grand balcon/terrasse de 39m2 offrant une vue imprenable sur les montagnes et le Jet d'eau.
La cuisine séparée, parfaitement équipée, permet de p...
Détails du bien
- Disponible à partir de
- Sur accord
- Pièces
- 5
- Salles de bain
- 3
- Surface habitable
- 190 m²



