1 / 15

Appartement à vendre - Route De La Gare 12, 1305 Penthalaz

4.5 rooms • 132 m² • 1er étage
CHF 980’000.-
CHF 7’424 m²

Pourquoi vous aimerez ce bien

Ferme rénovée charmante

Bureau lumineux en mezzanine

Système de chauffage économe

Organiser une visite

Réserver une visite avec Alfred aujourd'hui !

Alfred Bavaud
Cerise Immobilier Sàrl

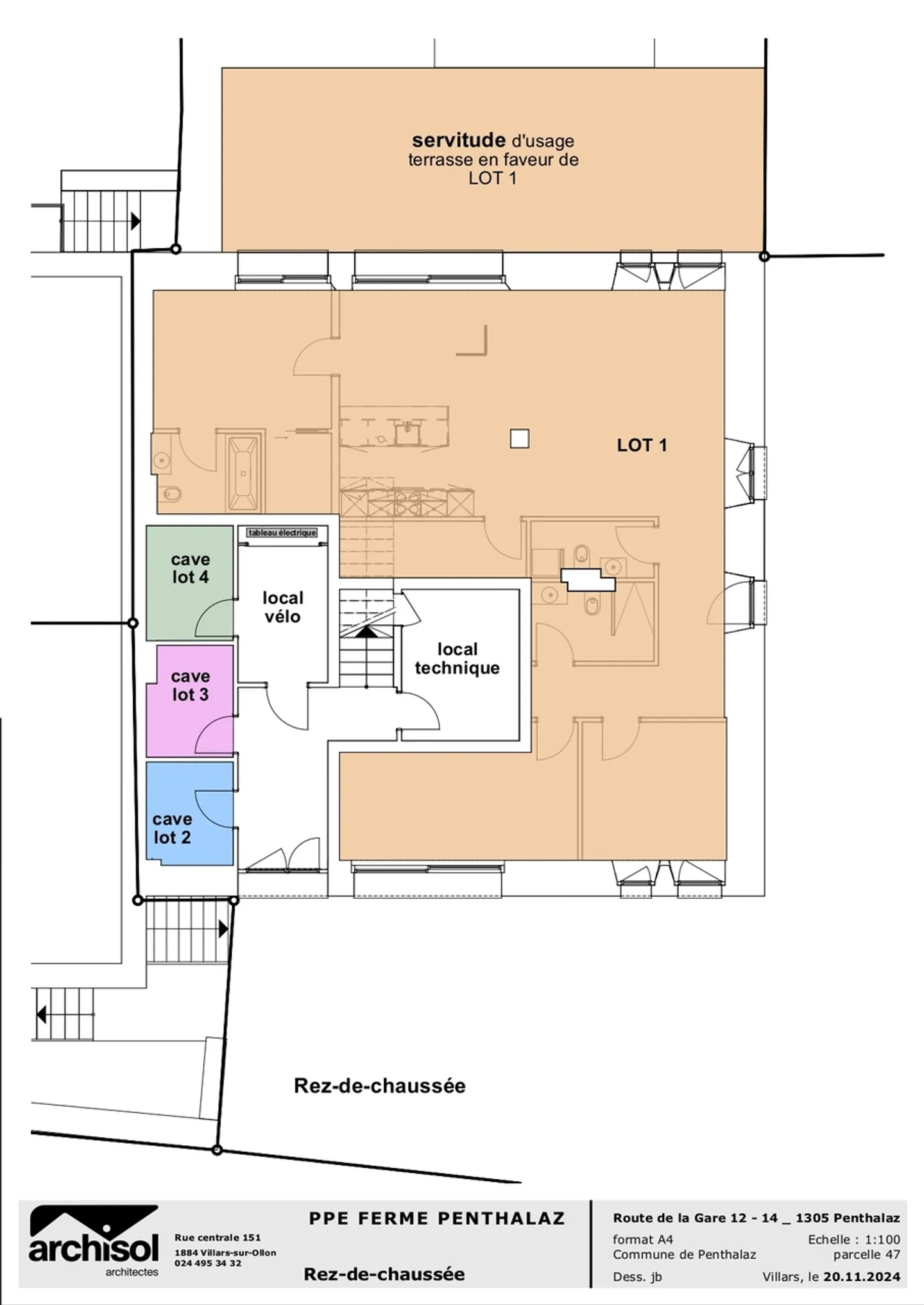
Magnifique appartement de 4.5 pièces en duplex avec mezzanine

Situé dans une magnifique ferme vaudoise entièrement rénovée en PPE, ce spacieux appartement en duplex de 4,5 pièces offre un cadre de vie calme et agréable, alliant harmonieusement le charme de l'ancien et la modernité des aménagements actuels.

Dès l'entrée, vous découvrirez une cuisine ouverte sur un séjour lumineux et accueillant, créant un espace convivial pour des moments en famille ou entre amis. Cet étage dispose également d'un balcon de 8 m².

À l'étage supérieur, une chambre parentale ave...

Détails du bien

Disponible à partir de
Sur accord
Pièces
4.5
Salles de bain
2
Année de construction
2024
Surface habitable
132
Surface du balcon
8
Étage
1er
Étages du bâtiment
3

Caractéristiques

Balcon

Agence

Cerise Immobilier Sàrl
Adresse:Avenue Centrale 151, 1884, Villars/Ollon
Alfred Bavaud
Ref: 5286119

Localisation

Route De La Gare 12, 1305 Penthalaz