1 / 10

Appartement à louer - 1180 Rolle

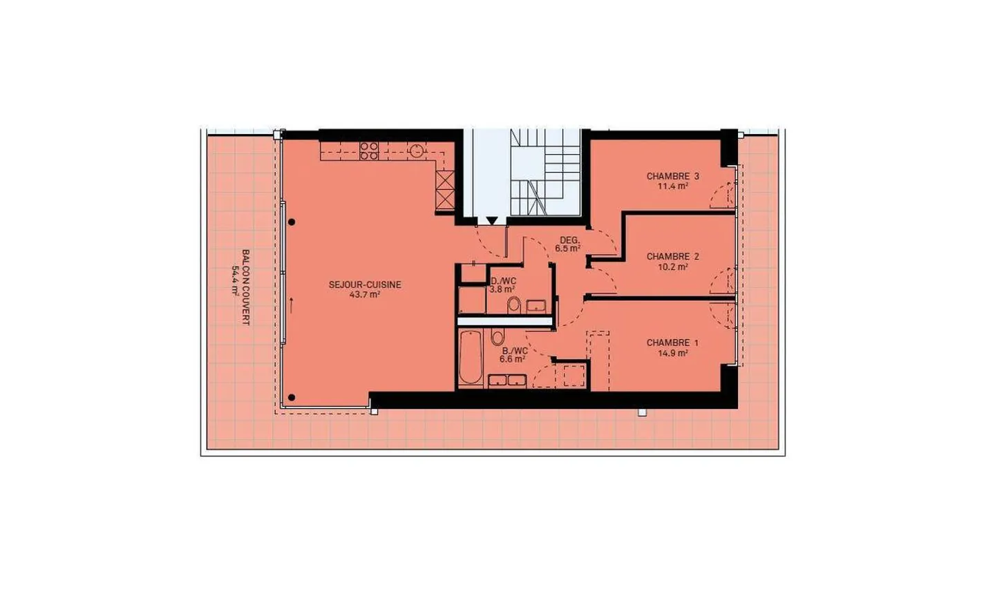
4.5 rooms • 101 m² • 1er étage
CHF 1’670’000.-
CHF 12’846 m²

Pourquoi vous aimerez ce bien

Balcon couvert de 54 m2

Vue panoramique sur le lac

Écologique Minergie P

Organiser une visite

Réserver une visite aujourd'hui !

Bernard Nicod SA | Yverdon Ventes

Nouvelle promotion : appartement d'angle de 4.5 pièces avec balcon couvert de 54 m2

Panorama de rêve ! Faites de l'exceptionnel votre lieu de résidence !

Bernard Nicod SA a le plaisir de vous présenter sa nouvelle promotion << Baie d'Opale >>. Celle-ci saura vous émerveiller avec ses immeubles de haut standing à l'architecture contemporaine et sa situation idyllique.

Située à 70m du lac Léman, longeant la plage de Rolle, ce projet est réalisé par notre Entreprise Générale Bernard Nicod SA et prévoit 6 immeubles PPE.

La << Baie d'Opale >> comprend des logements de 1.5 pièces à ...

Détails du bien

Disponible à partir de
31.05.2025
Pièces
4.5
Année de construction
2025
Surface habitable
101
Surface utilisable
130
Étage
1er

Caractéristiques

Balcon
Parking
Ascenseur
Adapté aux fauteuils roulants

Agence

Bernard Nicod SA | Yverdon Ventes
Adresse:Rue de la Plaine 39, 1401, Yverdon-les-bains
Ref: 66675

Localisation

1180 Rolle

Sources