Appartement à vendre - 1071 Chexbres
Pourquoi vous aimerez ce bien
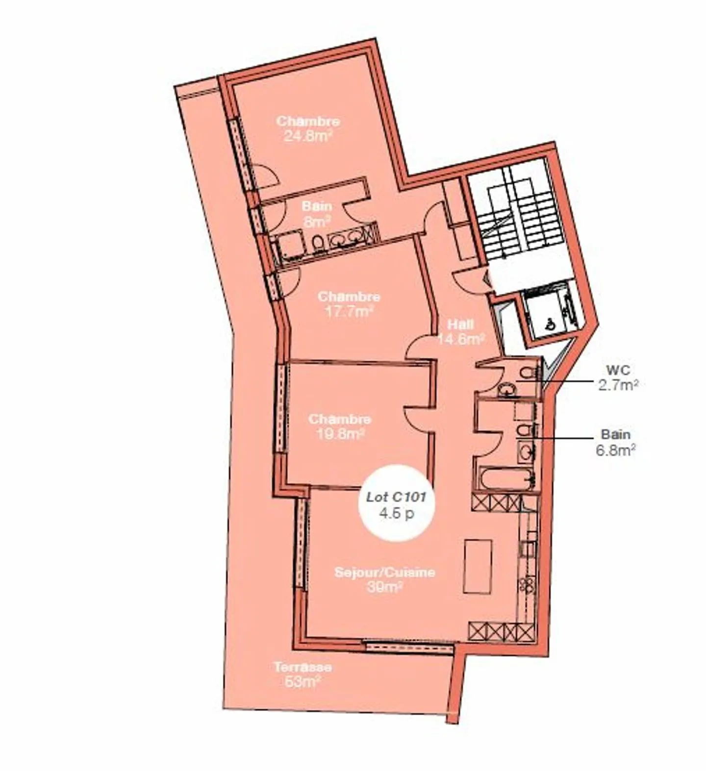
Terrasse spacieuse de 53 m²
Vue imprenable sur le lac
Finitions haut de gamme
Organiser une visite
Réserver une visite avec Florence aujourd'hui !
Neuf et lumineux : rez de jardin avec vaste terrasse et vue ouverte
Appartement élégant de 132 m², offrant confort moderne et belle surface extérieure, une terrasse de 53 m2. Parfait équilibre entre fonctionnalité et qualité de vie.
Idéal pour une famille recherchant confort et luminosité au coeur du Lavaux.
2 places de parc souterrain en sus.
Au coeur du Lavaux, classé au patrimoine mondial de l'UNESCO, découvrez une promotion exclusive de 14 appartements haut de gamme, répartis sur 3 bâtiments contemporains, offrant une vue spectaculaire sur le lac Léman et les A...
Détails du bien
- Disponible à partir de
- Sur accord
- Pièces
- 4.5
- Année de construction
- 2027
- Surface habitable
- 132 m²
- Étages du bâtiment
- 3




