Appartement à vendre - 1040 Echallens
Pourquoi vous aimerez ce bien
Vaste espace de vie ouvert
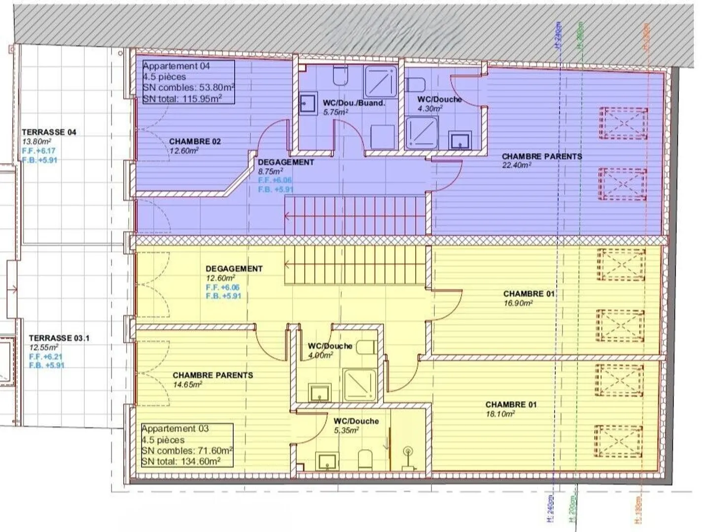
Accès à la terrasse privée
Système énergétique écologique
Organiser une visite
Réserver une visite avec Raphaël aujourd'hui !
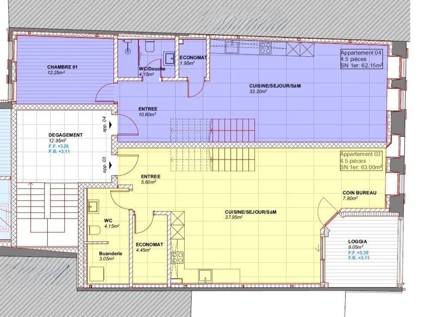
Dernière opportunité - Chantier en cours - lot 3
Situé dans une copropriété intimiste de 6 logements à Vuarrens, offrez-vous le charme authentique d'un ancien corps de ferme entièrement rénové. Ici, Newhome Services vous présente un appartement 4,5 pièces unique, conçu pour accueillir une famille en quête de confort et d'authenticité. Ce bien se distingue par sa répartition soigneusement pensée.
Au rez-de-chaussée
- Un vaste espace de vie avec cuisine ouverte.
- Une chaleureuse loggia de plus de 9 m²
- Un WC avec buanderie privative....
À l'étage, la par...
Détails du bien
- Disponible à partir de
- Sur accord
- Pièces
- 4.5
- Année de construction
- 2026
- Surface habitable
- 135 m²
- Étage
- 1er




