Appartement à vendre - 1026 Denges
Pourquoi vous aimerez ce bien
Espace jardin privé
Cuisine ouverte moderne
Système de chauffage écologique
Organiser une visite
Réserver une visite avec Tania aujourd'hui !
Nouvel appartement de 2,5 pièces avec terrasse et jardin !
Bernard Nicod SA a l'honneur de vous présenter en exclusivité son projet "Les Résidences du Village" dans le charmant village de Denges. La haute qualité architecturale de ce projet réalisé par notre entreprise générale Bernard Nicod SA fait partie du plan de quartier "Les Ochettes".
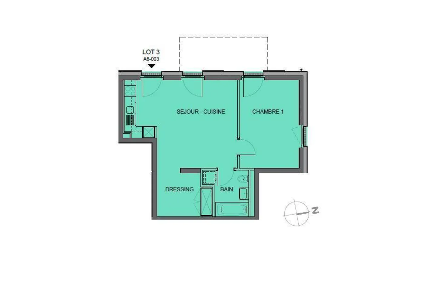
Cet appartement de 2,5 pièces est situé au rez-de-chaussée du bâtiment A avec une entrée séparée.
Il se compose d'une cuisine ouverte menant au salon lumineux avec un accès direct à une terrasse de 18,70 m2 et à un ...
Détails du bien
- Disponible à partir de
- Sur accord
- Pièces
- 2.5
- Année de construction
- 2023
- Surface habitable
- 52 m²
- Surface utilisable
- 66 m²
- Étage
- Rez



