Appartement à vendre - 1012 Lausanne
Pourquoi vous aimerez ce bien
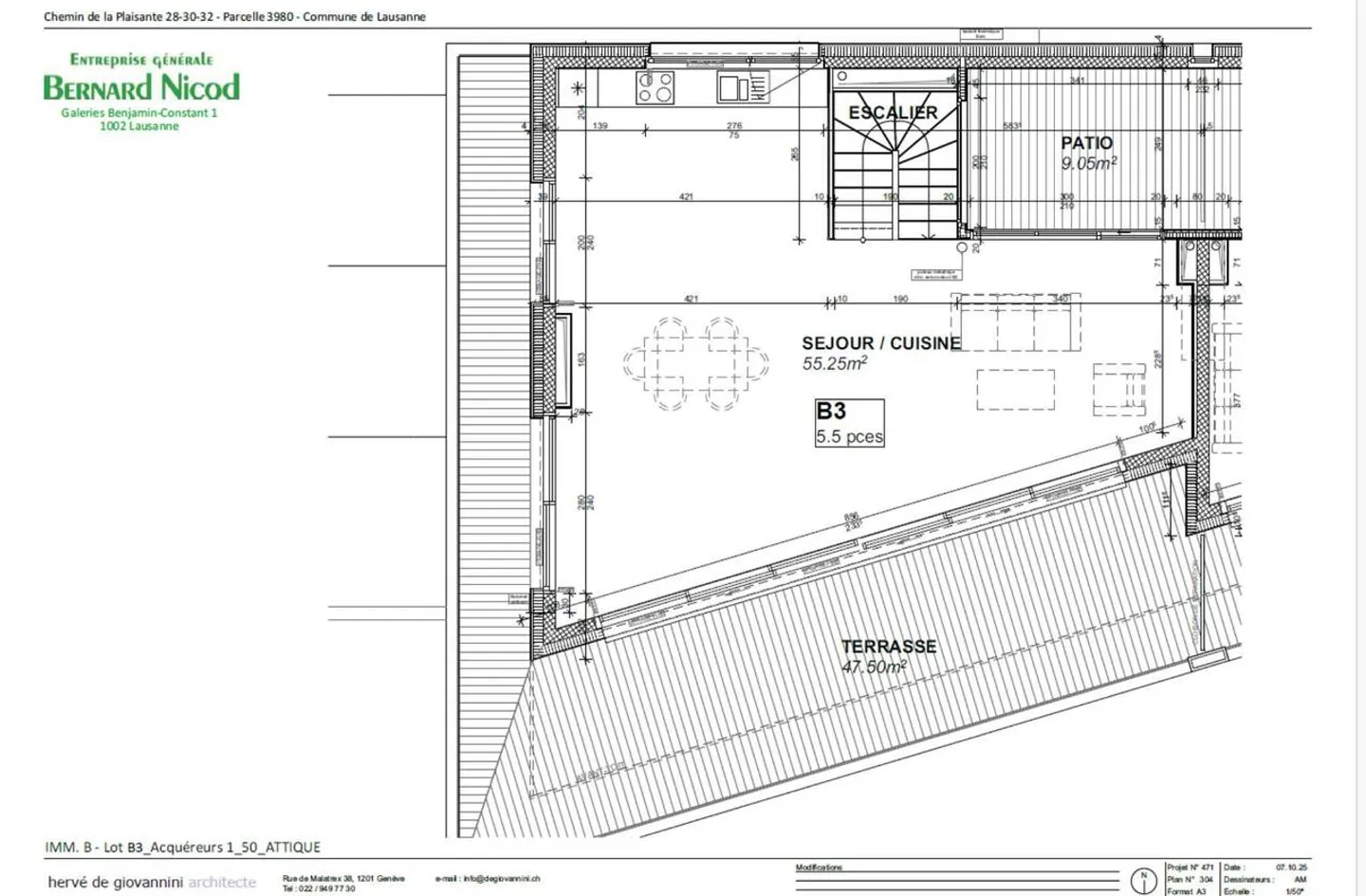
Terrasse spacieuse de 33m²
Quartier résidentiel calme
Proche des transports publics
Organiser une visite
Réserver une visite aujourd'hui !
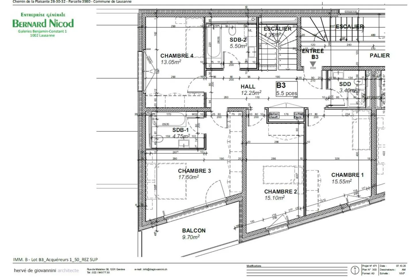
Résidence neuve à chailly - duplex de 5.5 pièces avec balcon plein sud
Nouvelle promotion dans le quartier prisé de Chailly !
Situé sur les hauteurs de Lausanne, le quartier de Chailly séduit par son ambiance résidentielle, sa verdure et sa proximité immédiate du centre-ville. Calme, recherché et parfaitement desservi par les transports publics, il offre un cadre de vie idéal pour les familles comme pour les actifs.
Cet appartement spacieux de 177.6 m² pondérée se distingue par un vaste hall d'entrée, d'un séjour en attique avec cuisine ouverte s'ouvrant sur une te...
Détails du bien
- Disponible à partir de
- Sur accord
- Pièces
- 5.5
- Année de construction
- 2025
- Surface habitable
- 154 m²
- Surface utilisable
- 178 m²
- Étage
- Rez



