Appartement à vendre - 1012 Lausanne
Pourquoi vous aimerez ce bien
Espace de vie spacieux
Grande terrasse pour se détendre
Espaces communs modernes
Organiser une visite
Réserver une visite avec HELOU aujourd'hui !
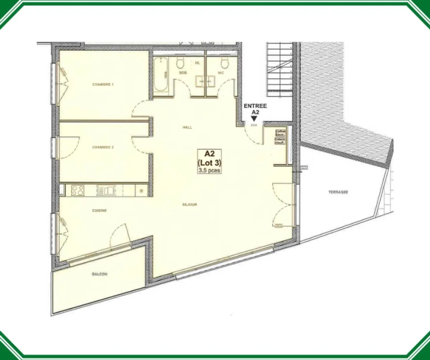
Appartement avec 3,5 pièces et terrasse
Cet appartement offre un salon agréable où la cuisine semi-ouverte est harmonieusement reliée à la zone de vie, créant un espace confortable avec un coin repas idéal pour les réceptions.
La cuisine donne sur un balcon de 8,7 m², tandis que le salon s'ouvre sur une belle terrasse de 13,4 m², parfaite pour profiter des belles journées et des moments de détente en plein air.
L'espace nuit se compose de deux grandes chambres confortables. Une salle de bain fonctionnelle ainsi qu'un WC invités complè...
Détails du bien
- Disponible à partir de
- 31.08.2027
- Pièces
- 3.5
- Année de construction
- 2027
- Surface habitable
- 100 m²
- Surface utilisable
- 108 m²
- Étage
- Rez



