Appartement de jardin 3,5 pièces dans un emplacement idyllique dans la région de Linth
Pourquoi vous aimerez ce bien
Jardin privé spacieux
Système audio Sonos intégré
Espace de vie lumineux avec terrasse
Organiser une visite
Réserver une visite avec Becker aujourd'hui !
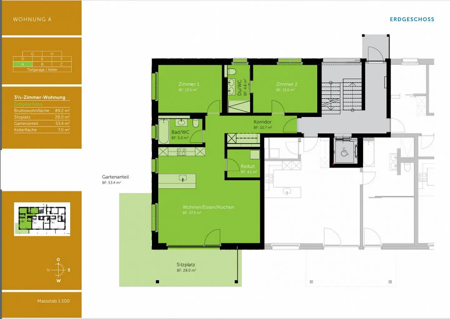
Vivre au calme, profiter de beaucoup d'espace extérieur et être bien connecté ?
Cet appartement de jardin moderne de 3,5 pièces au rez-de-chaussée d'une maison multifamiliale bien entretenue (construite en 2017) offre exactement cela. Le spacieux salon, salle à manger et cuisine forme le cœur de l'appartement et impressionne par sa lumière naturelle ainsi que par un accès direct à la grande terrasse et au jardin privé, parfait pour des soirées d'été confortables, des barbecues ou simplement pour ...
Détails du bien
- Disponible à partir de
- Sur accord
- Pièces
- 3.5
- Année de construction
- 2017
- Surface habitable
- 90 m²
- Étage
- Rez
- Étages du bâtiment
- 3




