Browse all shop and commercial property lease offers in Safiental.
Wincasa AG
59 m² • Shop
Bavurtga 3, 7402 Bonaduz
Bright, adaptable space
Excellent foot traffic
Close to public transport
Nocasa Partner AG
Commercial
Via Santeri 9, 7130 Ilanz
Central location near station
Flexible space customization
Ample parking for customers
Rebag Verwaltungs AG
2 rooms • 21 m² • Workshop
Via Nova 46, 7017 Flims Dorf
Renovated in 2025
Natural light from windows
Convenient location near bus
BVHPARTNER AG
Medical practice
Versamerstrasse 15, 7402 Bonaduz
Ideal for medical practice
Lift access to first floor
Parking available on site
Alfina Treuhand AG
Storage space
Dorfstrasse 20, 7402 Bonaduz
Natural cellar space
Ideal for storage needs
Ground floor access only
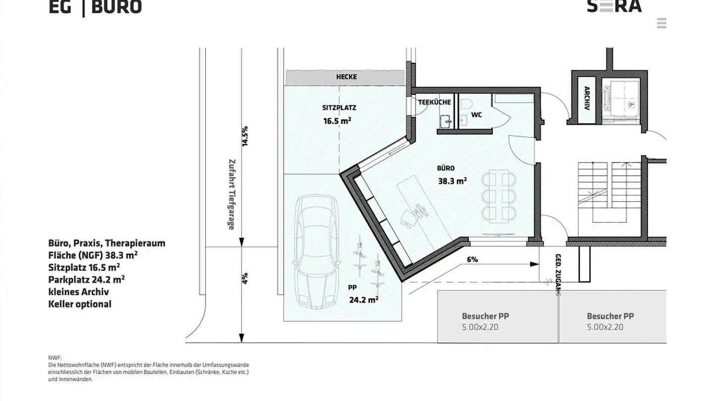
Office space
Via Sera Curt 3, 7402 Bonaduz
Ideal for therapy or art
Covered outdoor meeting area
Cooling floor heating system
RhB Immobilien AG
57 m² • Office space
Via Dalla Staziun, 7130 Ilanz
Modern 8-story building
Flexible space from 35m²
Shared kitchen and lounge
Via Principala 67a, 7031 Laax GR
Prime location near bus stop
Spacious 20m2 cellar
Flexible for various projects
Pfister & Sax Immobilien und Treuhand AG
Via Nova 80, 7017 Flims Dorf
Prime location with bus stop
Diverse amenities on-site
Wheelchair accessible entrance
Confidar Treuhand AG
Via Centrala, 7130 Ilanz
Spacious 144 m² layout
Flexible use for work/living
Wincasa SA - Siège
Bright, spacious layout
Customizable interior design
Cathomas Treuhand AG
Städtlistrasse 8, 7130 Ilanz
Located in historic old town
Next to the regional museum
Versatile space for various uses
Privera AG
Via Davitg 12, 7403 Rhäzüns
Spacious garden plots
Ideal for family activities