Apartment for rent - 7122 Valendas
Why you'll love this property
Unique climate-friendly design
Spacious living areas
Idyllic village location
Arrange a visit
Book a visit with Clivio today!
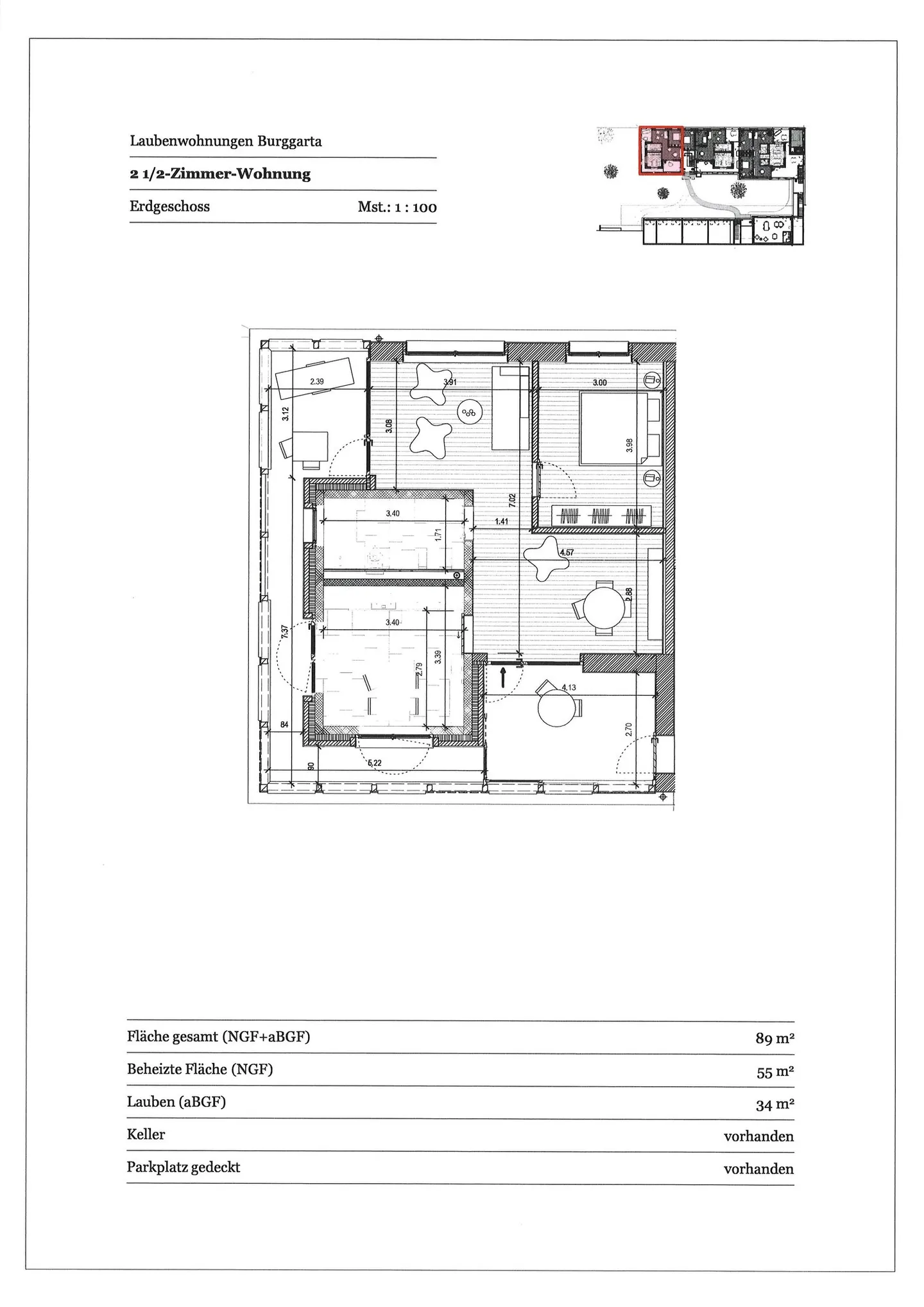
Modern 2.5-room apartment in a quiet location in Valendas
The rent is CHF 1,300.00 / Advance costs CHF 100.00 / Parking CHF 100.00, each monthly
Interested parties should contact directly:
info@stiftungvalendas.ch
or
077 493 59 28
Burggarta – a residential complex by Gion A. Caminada
On the western edge of the village of Valendas, the Burggarta residential complex with seven unique log cabins was built in 2020. The innovative, climate-friendly living concept is designed by none other than the well-known Gion A. Caminada from Vrin.
Burggarta – a unique place t...
Property details
- Available from
- By agreement
- Rooms
- 2.5
- Construction year
- 2020
- Living surface
- 89 m²
- Floor
- Ground




