Apartment for rent - Burgstrasse 25, 8037 Zürich
Why you'll love this property
Wheelchair accessible
Modern kitchen amenities
Close to public transport
Arrange a visit
Book a visit today!
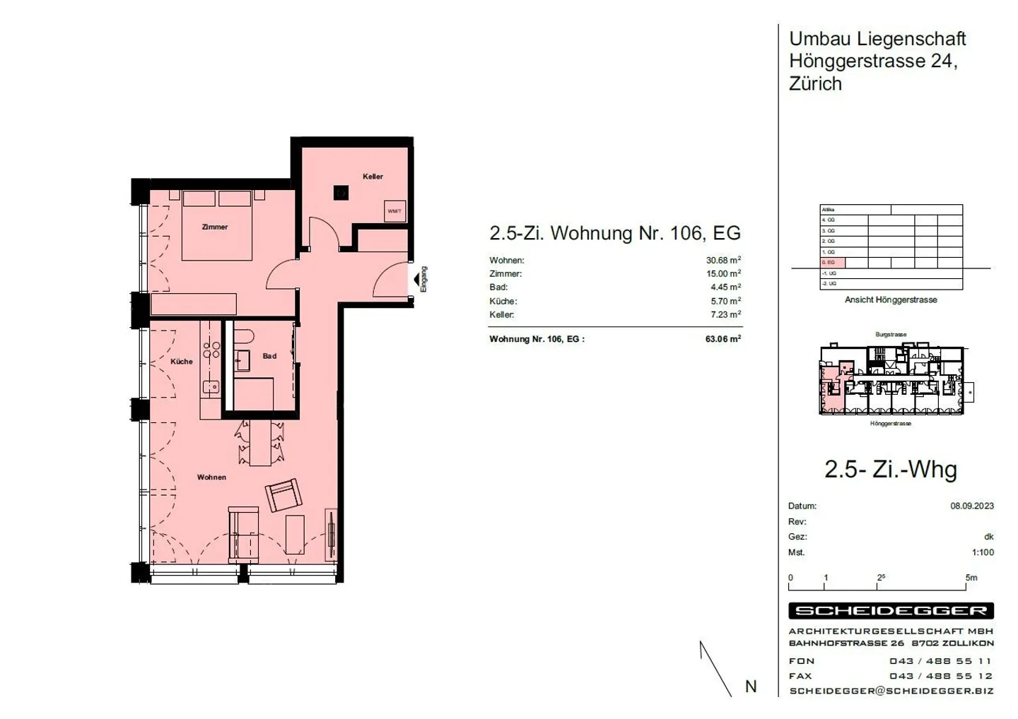
In the Heart of Zurich - 2.5 Room Apartment in a New Building
By arrangement, we are renting out the beautiful 2.5 room new apartment at Hönggerstrasse 24/Burgstrasse 25 in Zurich-Wipkingen.
Clear floor plans and modern design provide a new living experience. The apartments have a high standard of finish and offer the following amenities:
· generous room layout, wheelchair accessible
· tiled floors in all living areas
· tiled floors in the wet rooms
· modern kitchen, dishwasher and oven
· own washing tower (washing machine/tumble dryer) per apartment
· two bike p...
Costs breakdown
- Net rent
- CHF 2’650
- Additional costs
- CHF 150
- Total rent
- CHF 2’650
Property details
- Available from
- By agreement
- Rooms
- 2.5
- Construction year
- 2023
- Living surface
- 63 m²




