Single house for sale - Langwis, 8219 Trasadingen
Why you'll love this property
Stunning vineyard views
Spacious garden terrace
Modern kitchen island
Arrange a visit
Book a visit today!
Single-family house with a view of the vineyards
In the idyllic Trasadingen, we offer you your new home in a family-friendly, new single-family house neighborhood. 5 single-family houses and 2 double single-family houses are being built.
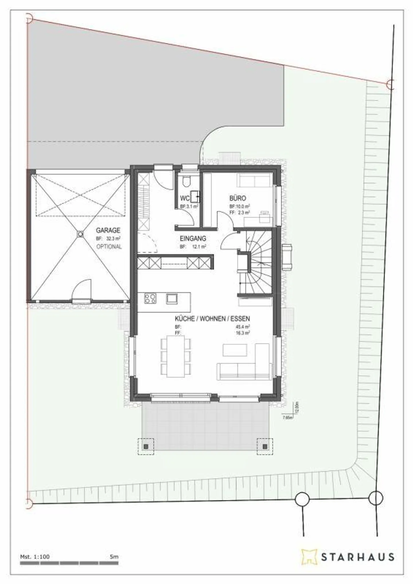
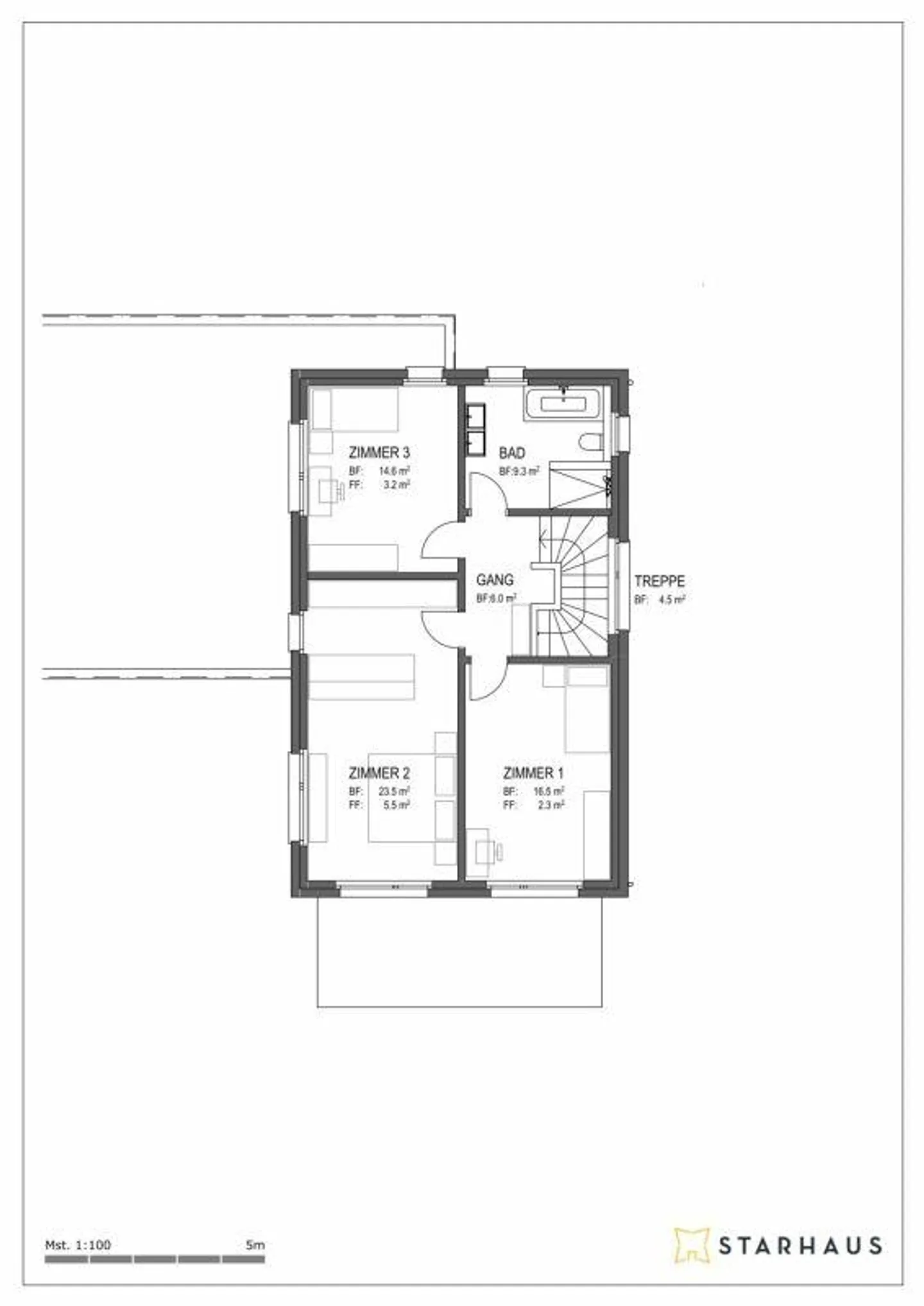
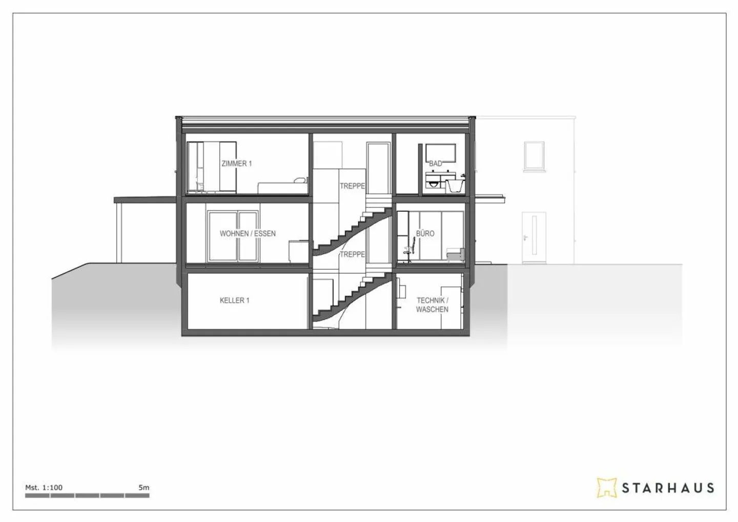
Our project proposal for a 5 1/2 room single-family house offers the following room layout:
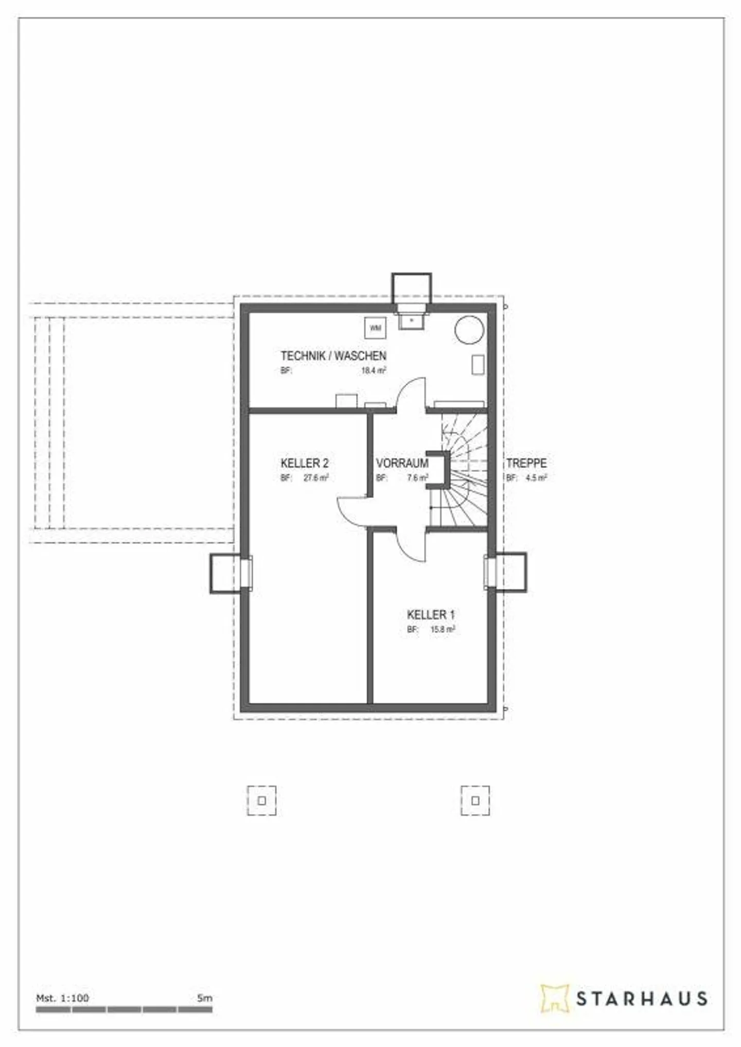
Basement: Spacious entrance hall with stairs to the ground floor
Technical/laundry room with air/water heat pump (underfloor heating), inverter for PV system, boiler, washing machine, and sink
Two large cellar rooms
Ground f...
Property details
- Available from
- By agreement
- Rooms
- 5.5
- Bathrooms
- 1
- Construction year
- 2026
- Living surface
- 145 m²
- Usable surface
- 251 m²
- Land surface
- 414 m²



