Single house for sale - Im Bühl 8, 9546 Tuttwil
Why you'll love this property
Massive construction for safety
Spacious kitchen with modern appliances
Energy-efficient heating system
Arrange a visit
Book a visit today!
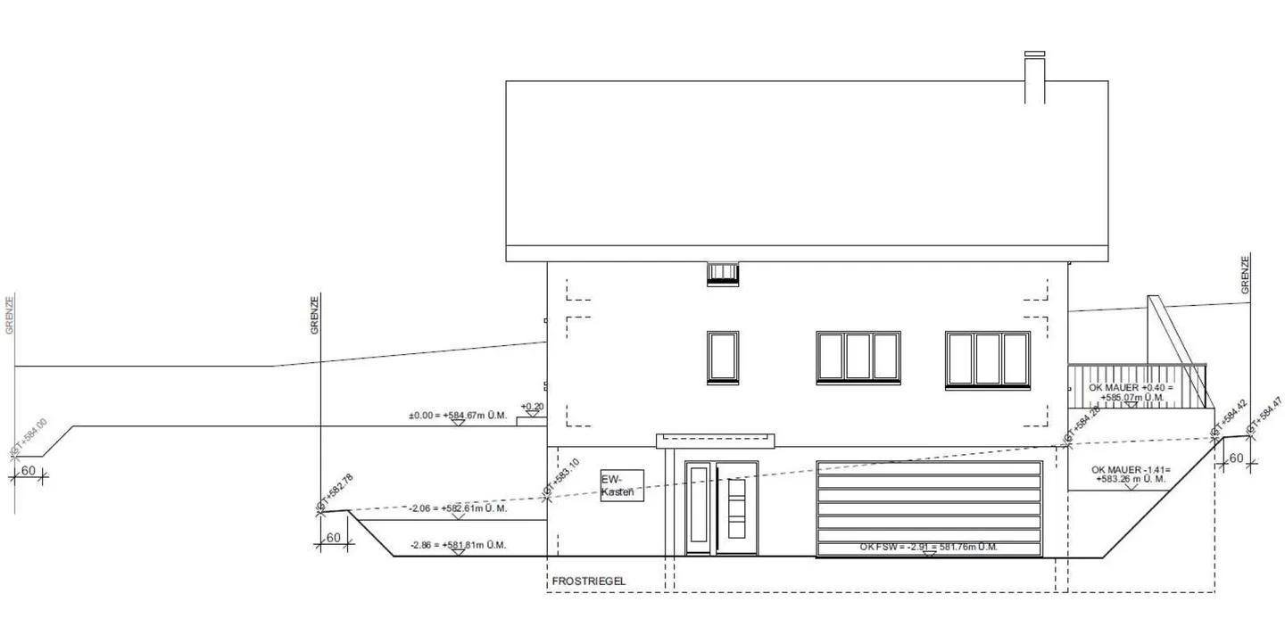
Zu verkaufen in 9546 Tuttwil bei Wängi, neues freistehendes 6½ Zi.-EFH, mit Doppelgarage, an ruhiger, sonniger Lage /Massivbau !
Zu verkaufen Im Bühl 8 in 9546 Tuttwil bei Wängi.
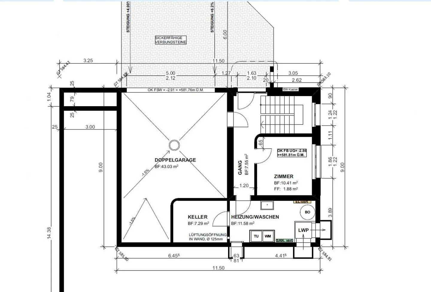
Neues freistehendes 6½ Zi.-EFH
Bauart, Massivbau:
Die Aussenwände sind 48 cm stark mit Doppelschalen-Backstein und 20 cm Mineralwolle dazwischen. Der Verputz der Backsteine ist innen und aussen aus Mineral-Verputz ! Dies ergibt ein gesundes und sehr angenehmes Wohnklima im Sommer wie im Winter. Das Haus ist sehr massiv gebaut, mit Erdbebenschutz !
Innenausbau:
Das Haus ist sehr grosszügig und komfortabel gebaut. Top Einteilung, Treppen mit Zwischenpod...
Property details
- Available from
- By agreement
- Rooms
- 6.5
- Bathrooms
- 2
- Construction year
- 2026
- Living surface
- 183 m²
- Land surface
- 757 m²



