Single house for sale - Im Bühl 8, 9546 Tuttwil
Why you'll love this property
Massive construction for safety
Spacious kitchen with modern appliances
Energy-efficient heating system
Arrange a visit
Book a visit today!
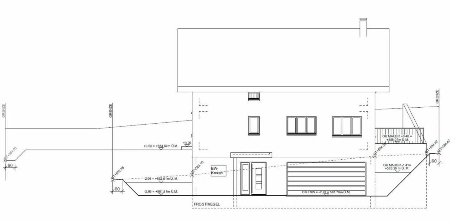
For sale in 9546 Tuttwil near Wängi, new detached 6½ room single-family house with double garage, in a quiet, sunny location / Solid construction!
For sale at Bühl 8 in 9546 Tuttwil near Wängi.
New detached 6½ room single-family house
Construction type, solid construction:
The exterior walls are 48 cm thick with double-shell brick and 20 cm mineral wool in between. The plaster of the bricks is made of mineral plaster inside and outside! This results in a healthy and very pleasant living climate in summer as well as in winter. The house is built very solidly, with earthquake protection!
Interior design:
The house is very spacious and comfortably...
Property details
- Available from
- By agreement
- Rooms
- 6.5
- Construction year
- 2026
- Living surface
- 183 m²



