Two Buildings with Renovation Potential
Why you'll love this property
Central location near Locarno
Expansion potential with lift
Various parking options available
Arrange a visit
Book a visit with GEIERSBERGER today!
Region: Locarnese
Ortschaft: 6600 Muralto
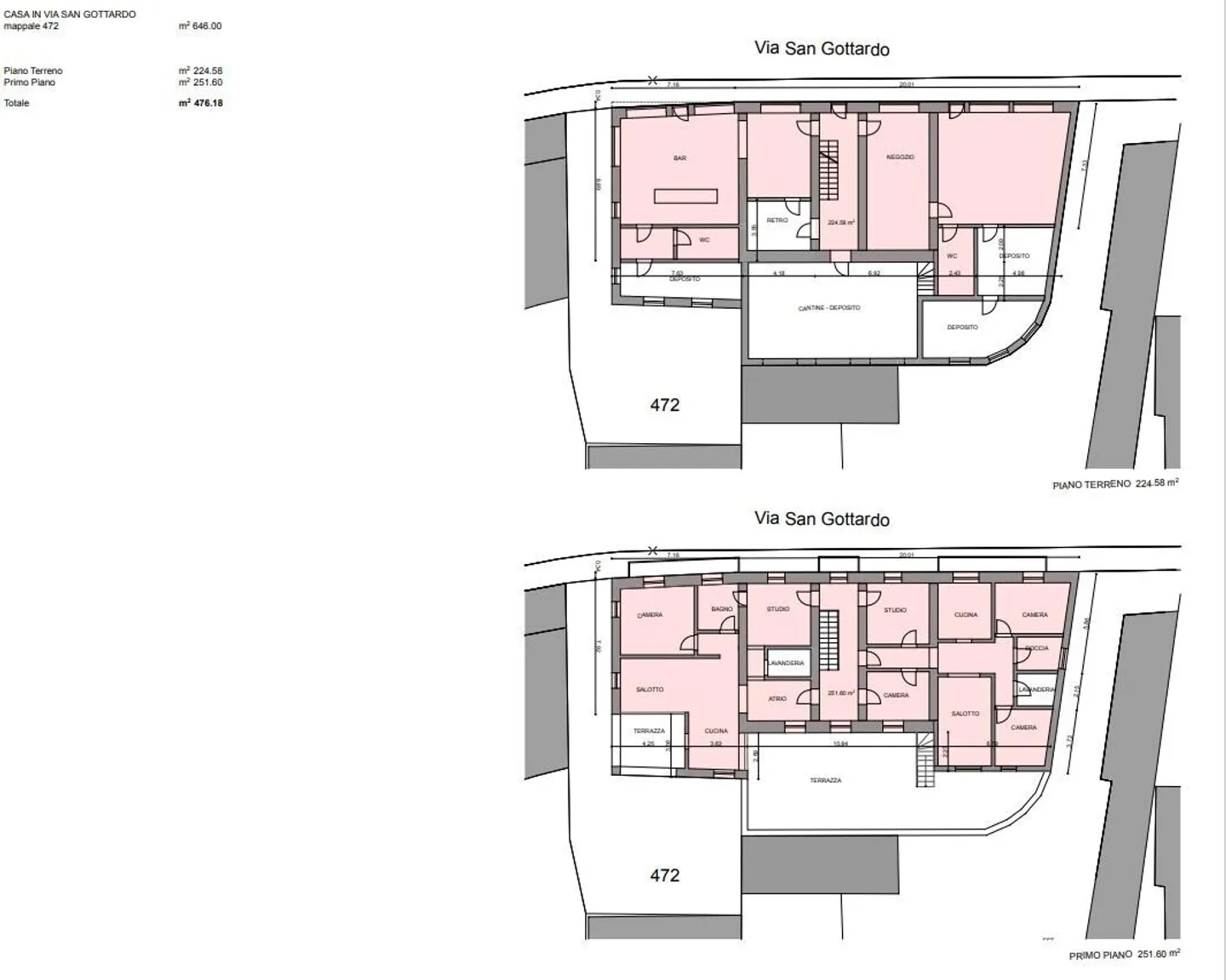
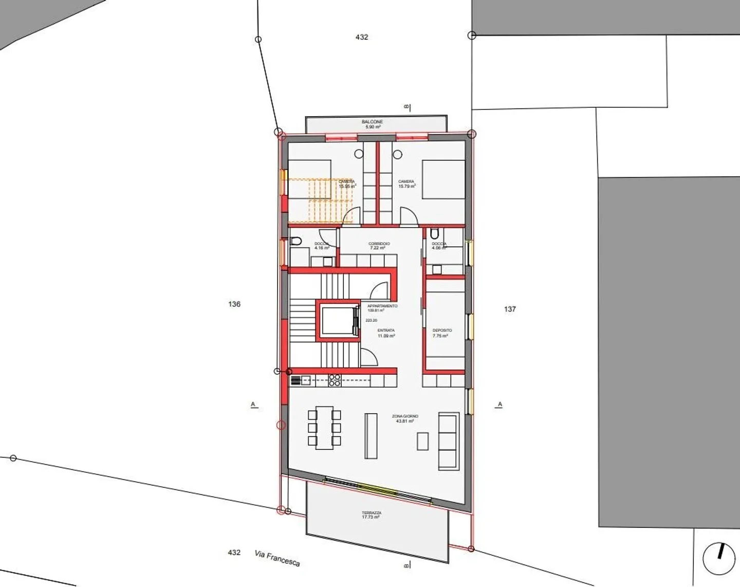
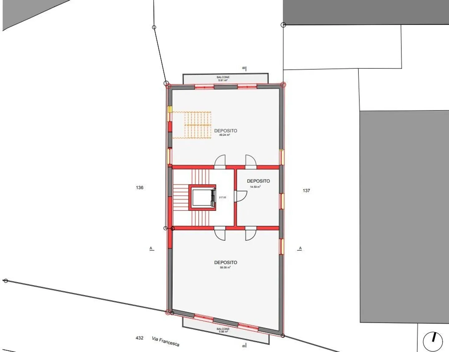
Objekt Typ: 2 Gebäude mit mehreren Wohnungen
Grundstücksfläche: 696 m2
Wohnfläche: ca. 734 + 700 m2
Balkon/Terrasse: ja
Baujahr: ?
Geschosse: 4 + 2 (Möglichkeit 2 resp. 1 Stockwerke zu erhöhen)
Parkplätze: verschiedene in der Tiefgarage und einige aussen
Zimmer:
Bad/Dusche/WC: diverse
Heizung: Oelzentralheizung
Bodenbelag Wohnbereich: Holz
Bodenbelag Schlafbereich: Holz
Lage: zentral
Nebenkosten:
Seesicht:
Schulen: ja
Einkaufsmöglichkeiten: ja
Oeff...
Property details
- Available from
- By agreement



