Agricultural business for sale - 6514 Sementina
Why you'll love this property
Well-kept vineyard
Vineyard house & cellar
Sunny location
Arrange a visit
Book a visit with Geiersberger today!
Rebberg
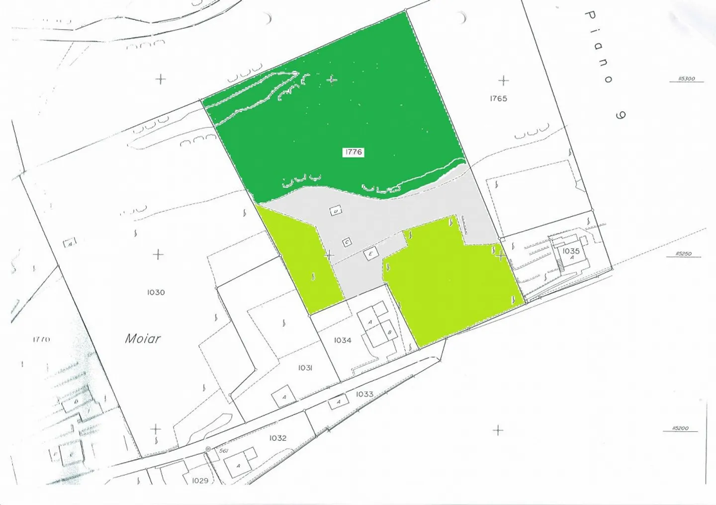
6514 Sementina, Vai Moyar
Region: Bellinzonese
Living area: approx. 7 m2
Plot area: approx. 5078 m2
Vineyard: approx. 1500 m2
Water: own spring
Parking: public parking spaces
Location: very sunny and central
View: yes
Shopping: yes
Public transport: 20 m
Distance to the nearest city: 5 km
Distance to the motorway: 5 km
Description
This vineyard is located west of Sementina on Via Moyar on a sunny hillside near Bellinzona.
The 5078 m2 plot consists of a very well-maintained vineyard of approx. 1500 m2 with 850 ...
Property details
- Available from
- By agreement
- Land surface
- 1500 m²


