Wohnung mieten - Sankt Niklausengasse, 6010 Kriens
Warum Sie diese Immobilie lieben werden
Charmanter Kamin
Sonniger SW-Balkon
Moderne Küche mit Granit
Besichtigung vereinbaren
Besichtigung buchen
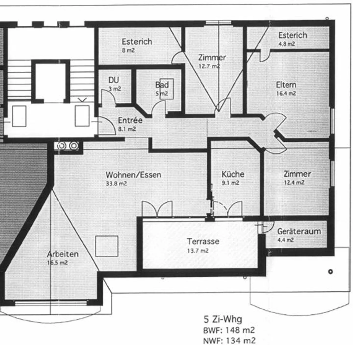
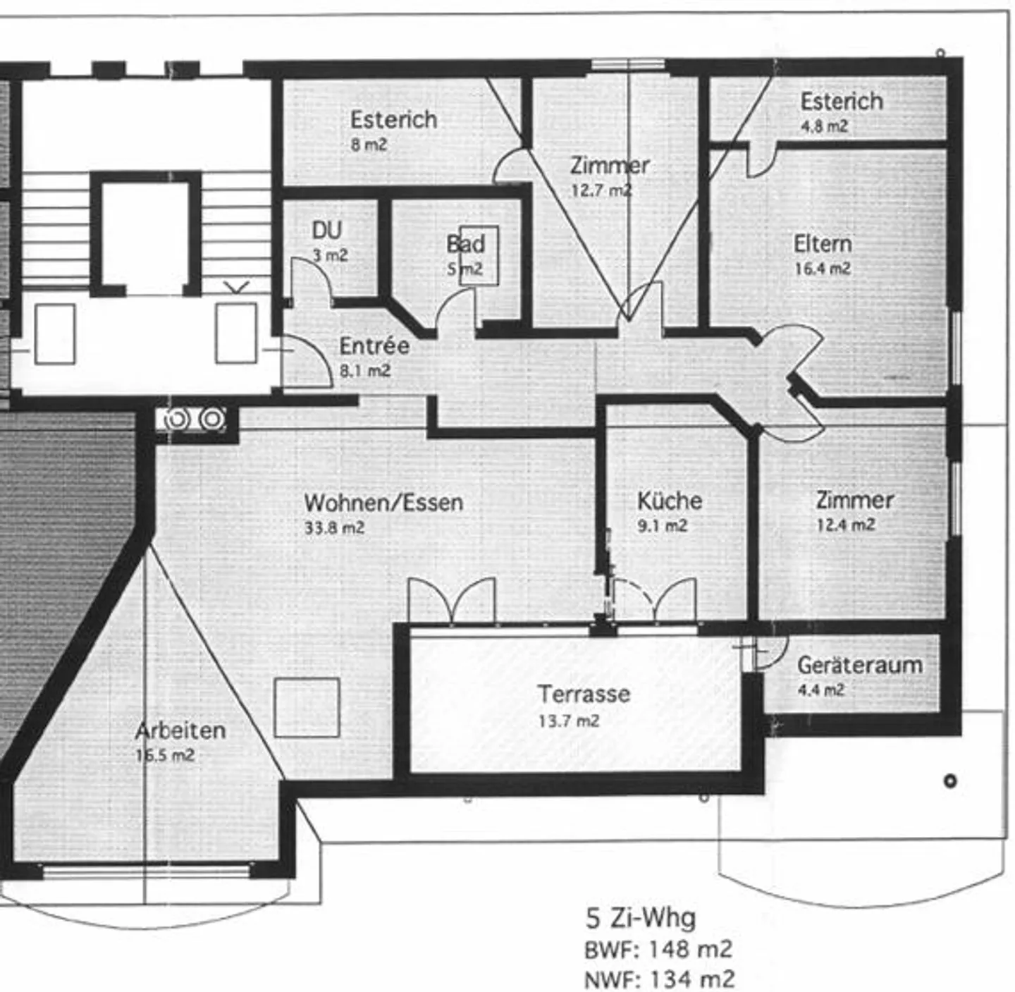
Moderne 4.5-Zimmer-Dachwohnung mit Kamin und Balkon in Kriens freie Pilatussicht
Entdecken Sie diese grosszügige 4.5-Zimmer-Dachwohnung eines gepflegten Wohngebäudes aus dem Jahr 1998 in Kriens. Mit 134 m² Wohnfläche BWF 148m²
Wohnung neu gestrichen.
Bodenbeläge: zwei Zimmer Parkett der Rest mit Plattenboden
Preis:
Inklusive Einstellhallenplatz E-Auto Vorbereitung vorhanden.
Ganzer Tag besonnt Balkon Ausrichtung SW
_Die Wohnung überzeugt mit:_
* Moderne Küche: Weisse Küche mit Granitarbeitsplatte, eingebautem Edelstahlbackofen, Geschirrspüler und grossem Esstisch
* Gemütliches Wohnz...
Kostenaufstellung
- Nettokosten
- CHF 3’050
- Zusätzliche Kosten
- CHF 250
- Gesamtkosten
- CHF 3’050
Immobiliendetails
- Verfügbar ab
- 01.01.1970
- Zimmer
- 4.5
- Baujahr
- 1998
- Wohnfläche
- 134 m²



