Durchstöbern Sie alle Inserate für Geschäftsflächen zum Verkauf in Kriens, darunter Arkaden, Läden und Boutiqueflächen, und verfeinern Sie Ihre Suche unter 50 Inseraten.
Truvag AG
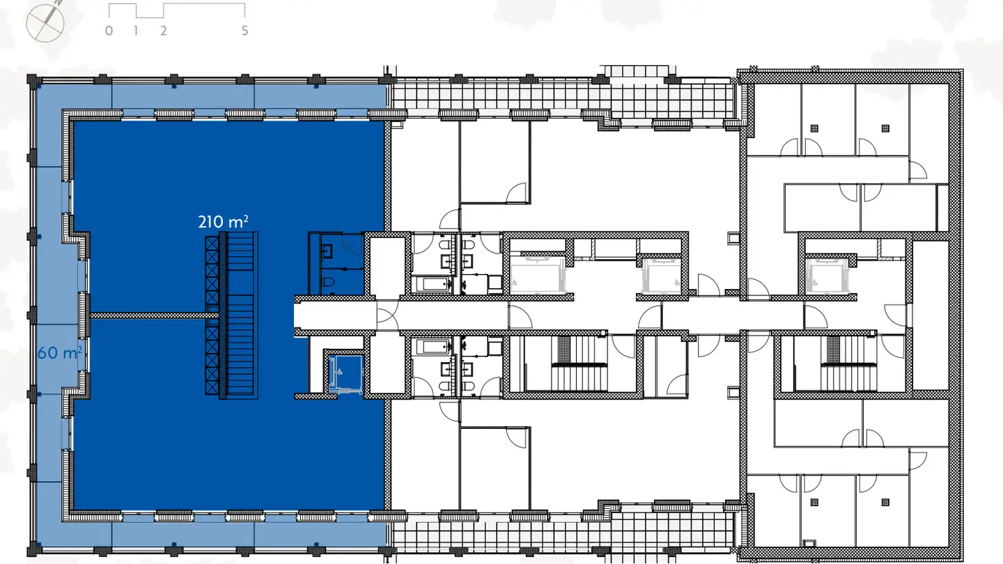
386 m² • Bürofläche
Langsägestrasse 15, 6010 Kriens
Nachhaltiger SNBS Gold-Standard
Helles Open-Space-Design
Ausgezeichnete ÖV-Anbindung
WAS? Hochwertig ausgebaute Büroflächen an zentraler Lage!
Die Falck Gruppe AG
1 Zimmer • Werkstatt
Schützenheimweg 8, 6012 Obernau
Atemberaubende Bergsicht
Natürliches Licht überall
In der Nähe von Wanderwegen
«ZU VERMIETEN Ihr eigenes Atelier!»
storabble Group AG
2 m² • Lagerraum
Nidfeldstrasse, 6010 Kriens
Rund um die Uhr zugänglich
Modernes Gebäudedesign
In der Nähe von Verkehrsanbindungen
Nützliche Kellerabteile aus Holzpaletten
780 m² • Gewerbe
Nidfeldstrasse 1, 6010 Kriens
Hervorragende Verkehrsanbindung
Eigenes Parkhaus vorhanden
In der Nähe von Erholungsgebieten
Gewerbe in Kriens
1100 m² • Lagerraum
Grosszügige Lagerflächen
Optimale Anlieferung
Hohe Tragfähigkeit
Moderne Lagerfläche in Kriens
Alfred Müller AG
826 m² • Gewerbe
Nidfeldstrasse 12, 6010 Kriens
Ebenerdiger Zugang
Grosse Schaufenster
Genügend Kundenparkplätze
Laden- oder Dienstleistungsflächen an idealer Verkehrslage 826 m²
50 m² • Gewerbe
Kreuzstrasse 34, 6010 Kriens
Inspiriertes kreatives Umfeld
Flexible Mietoptionen
Moderne Annehmlichkeiten inklusive
Büroplatz in toller Fotostudio Atmosphäre
Luzerner Pensionskasse
185 m² • Gewerbe
Horwerstrasse 24, 6010 Kriens
185m2 Gewerbefläche
Separater Zugang vorhanden
Öffentliche Parkplätze in der Nähe
Gewerbefläche im Sportzentrum Kleinfeld zu vermieten
Bürofläche
Am Mattenhof 5, 6010 Kriens
Hervorragende Sichtbarkeit
Direkter Zugang zu Verkehr
Neues lebendiges Areal in der Nähe
Hervorragende Sichtbarkeit für Ihr Business
Grosse Fensterfronten
Direkter Zugang zu ÖV
Perfekt positioniert im PilatHuus
BVK
237 m² • Gewerbe
Langsägestrasse 21, 6010 Kriens
17m Schaufensterfront
Direkt an Hauptstrasse
Parkplätze für Kunden
Hier werden Sie gesehen - rund 17 Meter Schaufenster!
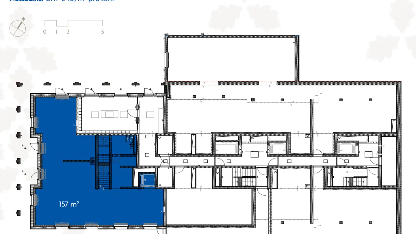
368 m² • Gewerbe
Langsägestrasse 19, 6010 Kriens
80m² Balkon für Kunden
Privater Liftzugang
60m² Lagerfläche
80m² Balkonfläche für Ihre Kunden und Sie
Rainacherstrasse 12, 6012 Obernau
Flexible Raumgestaltung
Helle Räume mit hohen Decken
Gute Anbindung an ÖV
Grosszügige Gewerberäumlichkeiten im Industriegebiet Kriens-Obernau
Mobimo Management AG
Lagerraum
Am Mattenhof 12, 6010 Kriens
3,5 m hohe Decken
Einfacher Garagenzugang
Mit Steckdosen ausgestattet
Brauchen Sie zusätzlichen Stauraum?
Gewerbe-Treuhand AG
4.5 Zimmer • 112 m² • Werkstatt
Horwerstrasse, 6010 Kriens
Schöner Balkon für Entspannung
Flexibler Grundriss für Kreativität
Hochwertige Küchengeräte
Grosszügige Atelier-Wohnung im suburbanen Schweighofquartier
Regus
75 m² • Bürofläche
Am Mattenhof 2d, 6010 Kriens
Privates Büro für 5
Zugang zum globalen Netzwerk
Anpassbares Bürolayout
Professionelle Büroräume in Regus Spoom Kriens zu komplett flexiblen Bedingungen
Equans Switzerland Facility Management AG
127 m² • Bürofläche
Dattenmattstrasse 16, 6010 Kriens
Helle und freundliche Atmosphäre
Eigener Archivraum
Direkter Zugang zum ÖV
Planen Sie Ihr Startup in Kriens-Horw
300 m² • Gewerbe
Geräumiges 14x21m Studio
Gemeinsame professionelle Ausrüstung
Inspirierendes kreatives Umfeld
Büroplatz und Studio für Fotografen
Swiss Immobilien Hergiswil GmbH
1 Zimmer • Industrieimmobilie
Wyssmattstrasse 6, 6010 Kriens
Grosszügiger offener Bereich
Moderne Küche mit Edelstahlgeräten
Funktionales Badezimmer mit Waschmaschine
Moderne Gewerbefläche in Kriens - sofort verfügbar
Gewerbebauten TPC AG
Grabenhofstrasse 1, 6010 Kriens
Erweiterbare Lagerfläche
In einem Gewerbegebäude
Bequemer Zugang vorhanden
Lagerfläche in 6010 Kriens
16 m² • Gewerbe
Degenstrasse 3, 6010 Kriens
Charmanter Fabrikstil
Zugang zum Gemeinschaftsraum
Flexible Mietkonditionen
2 Büros/Atelierplätze frei in hellem 55qm Raum (wird zu dritt genutzt)
Krieger & Linsi AG
1600 m² • Bürofläche
Ringstrasse 27, 6010 Kriens
Hochwertiger Innenausbau
Flexible Bürolayouts
Ausgezeichnete Verkehrsanbindung
Exklusive 1600 m² Bürofläche in Kriens - bezugsbereit 2026
Intercity Immobilien AG
Nidfeldstrasse 2, 6010 Kriens
Vielseitige Nutzungsmöglichkeiten
Hohe Sichtbarkeit der Schaufenster
Nahe öffentlicher Verkehrsanbindung
«Ausgebaute Gewerbefläche nahe Stadtzentrum Luzern»
Schachenstrasse 22, 6010 Kriens
Einfache Zufahrt zum Be- und Entladen
Ideal für persönliche Gegenstände
Zentrale Lage mit Verkehrsanbindung
Lagerraum in Kriens zu vermieten!