Row house for rent - 8200 Schaffhausen
Why you'll love this property
Modern cozy living space
Underfloor heating comfort
Ideal location for families
Arrange a visit
Book a visit today!
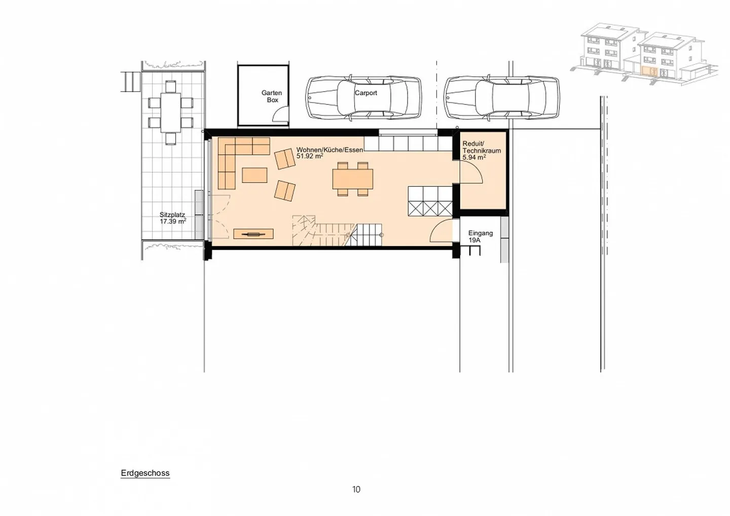
Spacious 5.5-Room New Townhouse in Schaffhausen
In a charming village in the canton of Schaffhausen, this townhouse with 5.5 rooms offers the perfect combination of coziness and modernity. The living room invites you to linger, while the modern kitchen is a place of inspiration. With a total of 4 bedrooms and 2 bathrooms, this house provides enough space for the whole family. The property features a basement and a practical carport.
The townhouse will be built in 2026. The modern standard of construction is emphasized by the well-kept surround...
Costs breakdown
- Net rent
- CHF 2’950
- Additional costs
- CHF 250
- Total rent
- CHF 2’950
Property details
- Available from
- By agreement
- Rooms
- 5.5
- Construction year
- 2026
- Living surface
- 150 m²



