Semi-detached house for rent - Hinterdorfstrasse 2, 5735 Pfeffikon LU
Why you'll love this property
Contemporary architecture
Spacious balcony retreat
High-end design finishes
Arrange a visit
Book a visit today!
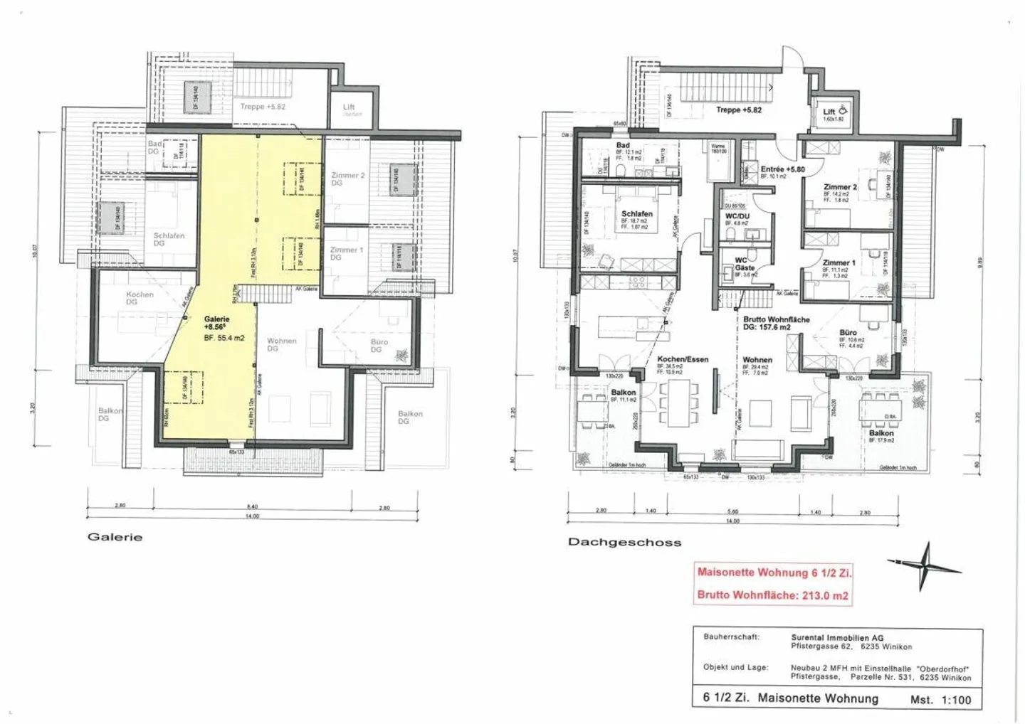
6 1/2-Room Attic Maisonette Apartment
6 1/2-Room Attic Maisonette Apartment
Exclusive 6 1/2-Room Attic Maisonette Apartment in 6235 Winikon, Hinterdorfstrasse 2
If you are looking for the extraordinary...., along with peace and relaxation, then we can offer you an exclusive apartment, with high-quality construction standards, bordering a stream and green zone, in the Oberdorfhof development, Winikon. Great importance was placed on integrating the development into the village landscape.
Property description: The contemporary architectur...
Costs breakdown
- Net rent
- CHF 2'550
- Additional costs
- CHF 310
- Total rent
- CHF 2'550
Property details
- Available from
- By agreement
- Rooms
- 6.5
- Construction year
- 2017
- Living surface
- 210 m²



