Single house for rent - Sunnerainstrasse 12, 6353 Weggis
Why you'll love this property
Stunning mountain and lake views
Spacious garden for relaxation
Quiet location for peaceful living
Arrange a visit
Book a visit with Dragana today!
Charming single-family home with mountain and lake views and spacious garden
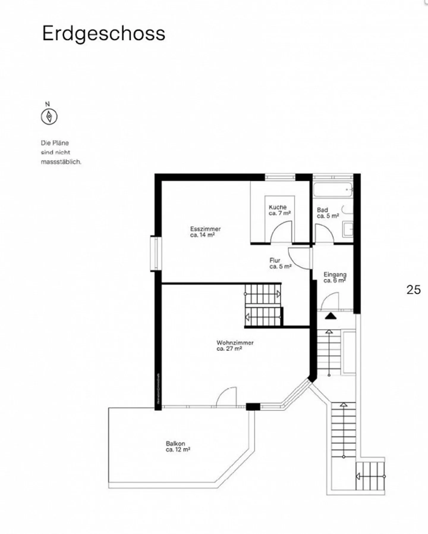
This single-family home has approximately 100 m2 of usable space and is characterized by a spacious garden that offers plenty of room to relax and enjoy. The quiet location and pleasant living environment provide ideal conditions for restful living. The property opens up various possibilities and forms an excellent basis for realizing your individual living visions. The single-family home is ready for immediate occupancy and is limited to three (3) years until 31.12.2028.
Tenant's obligation: The...
Costs breakdown
- Net rent
- CHF 1’950
- Additional costs
- CHF 250
- Total rent
- CHF 1’950
Property details
- Available from
- By agreement
- Rooms
- 3.5
- Living surface
- 100 m²



