1 / 12

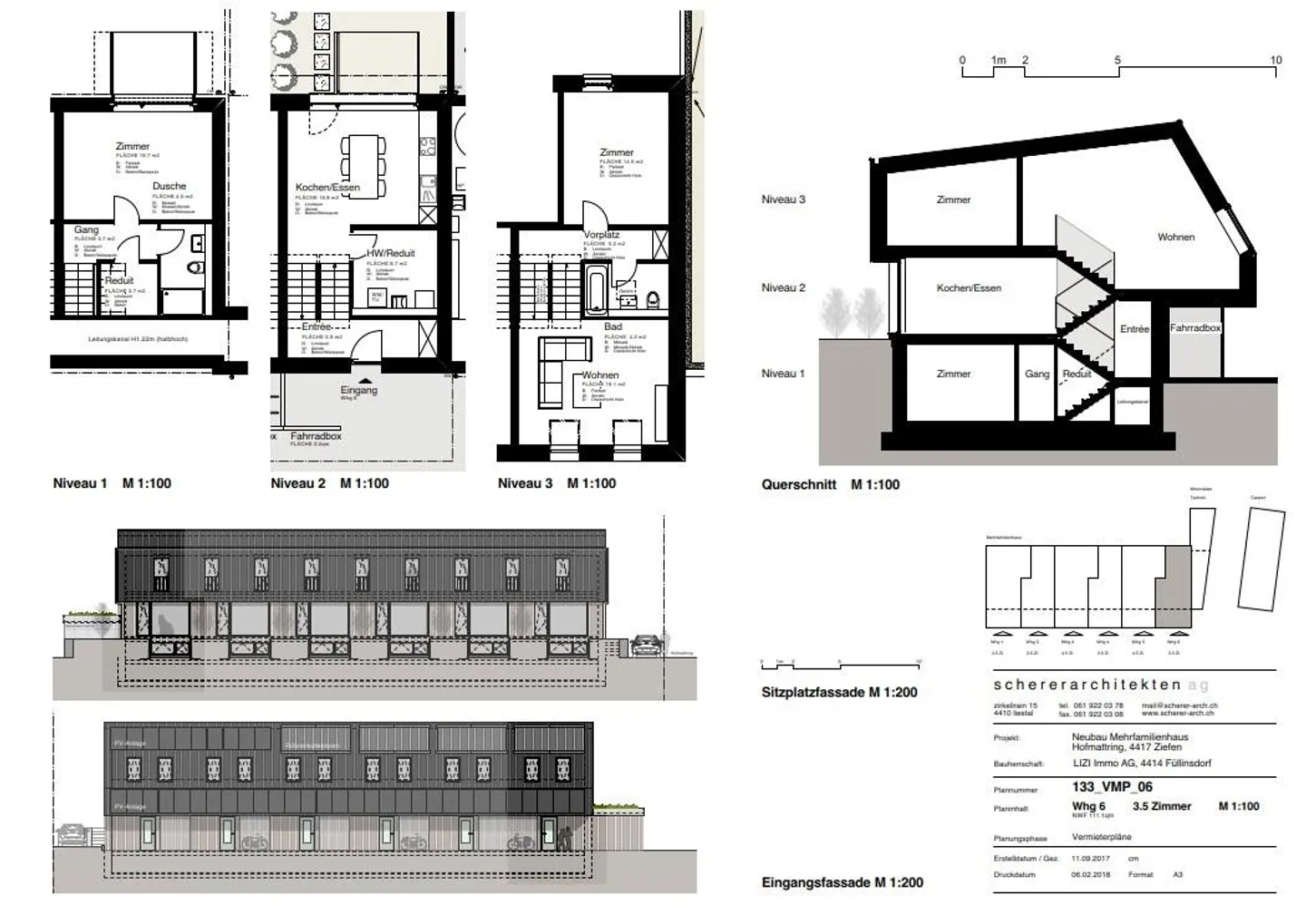
Row house for rent - Hofmattring 11a, 4417 Ziefen

3.5 rooms • 100 m²
CHF 2’075.-
CHF 249 m² / year

Why you'll love this property

Bright open living area

Elegant bathrooms with mosaics

Private garden and patio

Arrange a visit

Book a visit today!

immotreu gmbh
This description has been automatically translated from German.

Modern 3.5-room terraced house in a quiet location in ziefen

This modern 3.5-room terraced house in Ziefen offers a bright, friendly home with plenty of space to feel comfortable over approximately 100 m². On the ground floor, you will find an open living and dining area with a modern fitted kitchen, large window fronts, and direct access to the cozy seating area and garden. Here you can wonderfully relax or host guests.

The living areas are equipped with beautiful parquet floors, which create a warm ambiance. Three well-shaped rooms offer versatile usage ...

Property details

Available from
07.10.2025
Rooms
3.5
Construction year
2016
Living surface
100

Features

Balcony
Parking
Washing machine

Agency

immotreu gmbh
Ref: y9kp4.dgcp0

Location

Hofmattring 11a, 4417 Ziefen

Sources