Single house for rent - Schloss Sulzberg 1, 9033 Untereggen
Why you'll love this property
Historic castle living
Stunning views of Lake
Private garden access
Arrange a visit
Book a visit with Annina today!
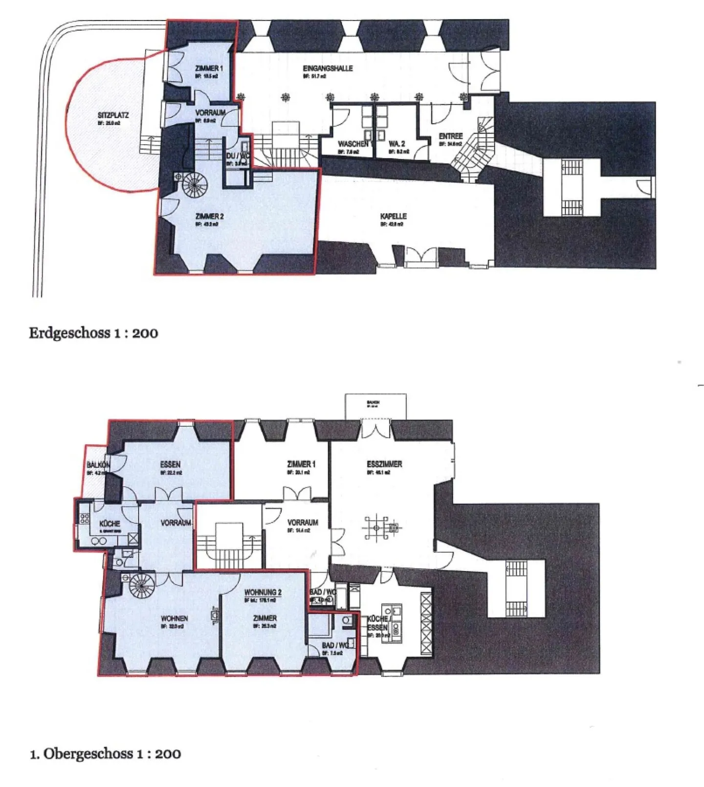
Unique living in historic building (castle sulzberg) in idyllic location
We are renting this unique and spacious 5.5-room maisonette apartment, which is located in the Castle Sulzberg in an idyllic location, by arrangement.
The most important facts for you at a glance:
* Living in a historic building (Castle Sulzberg)
* Dreamlike panoramic view all the way to Lake Constance
* Timeless and high-quality standard of development with parquet and tiled floors
* Modern kitchen
* Fireplace available
* Three bathrooms (1x bath/WC, 1x shower/WC, 1x WC)
* Washing machine connection av...
Costs breakdown
- Net rent
- CHF 3’130
- Additional costs
- CHF 330
- Total rent
- CHF 3’130
Property details
- Available from
- By agreement
- Rooms
- 5.5
- Living surface
- 120 m²



