Restaurant for rent - Luzernstrasse 130, 4528 Zuchwil
Why you'll love this property
Spacious 172 m² area
70 indoor & 50 outdoor seats
Fully equipped kitchen ready
Arrange a visit
Book a visit today!
Restaurant in Prime Location!
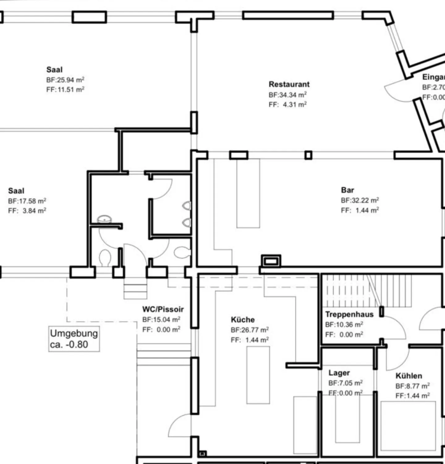
Spacious - Prime Location - Ready to Start.... Discover the perfect opportunity to open a restaurant in a prime location! This spacious area of 172 m² offers you everything you need for a successful gastronomic operation.
Casa Vera Real Estate offers you the following advantages:
5 Rooms: Optimally divided for kitchen, storage, restaurant area, hall, three restrooms, and more.
Capacity: 70 indoor seats and 50 cozy outdoor seats on the inviting terrace - ideal for sunny days and mild evenings.
Kitche...
Property details
- Available from
- By agreement
- Living surface
- 173 m²

