Factory for rent - Via Sceresa, 6805 Mezzovico
Why you'll love this property
High ceilings up to 8m
Well-connected location
Includes office and canteen
Arrange a visit
Book a visit with Tahra today!
INDUSTRIAL SPACE WITH PARKING SPACES
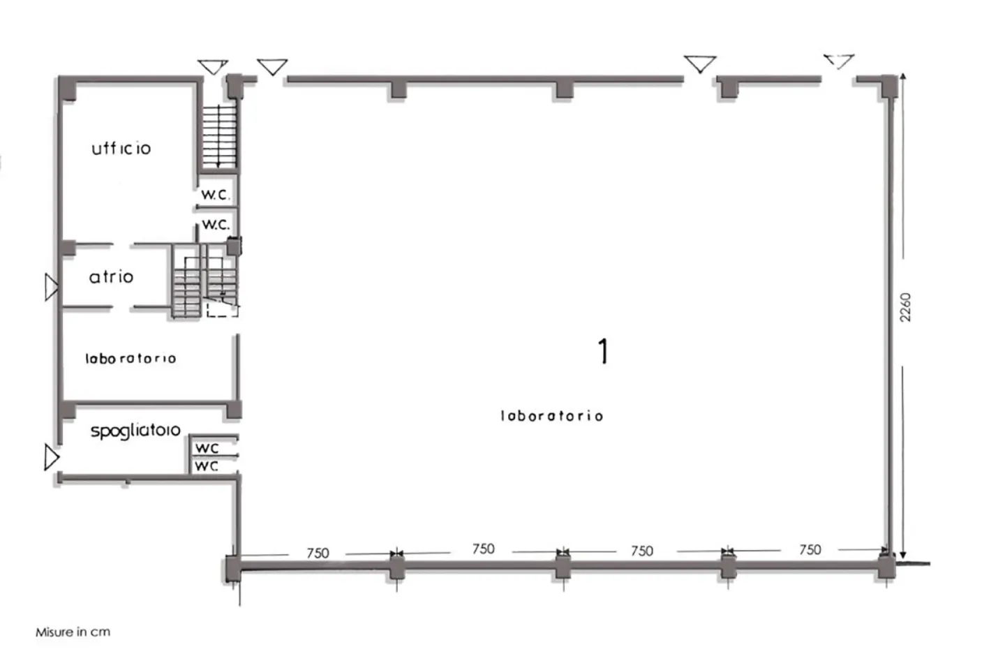
In an established industrial area, well connected both by road and by train (the Mezzovico train station is 100 meters away), we offer a space of approximately 925 m² with a minimum height of 6 m and a maximum height of 8 m for rent, divided as follows:
GROUND FLOOR:
approx. 720 m² production/storage/laboratory space
approx. 130 m² office, changing and ancillary rooms
8-15 outdoor parking spaces at CHF 100,-/month
FIRST FLOOR:
approx. 75 m² additional office space
Availability: to be agreed
Rent: CHF 12...
Costs breakdown
- Net rent
- CHF 11’000
- Additional costs
- CHF 1’000
- Total rent
- CHF 11’000
Property details
- Available from
- 01.01.2022
- Renovation year
- 2019



