1 / 6

Medical practice for rent - Tägerhardstrasse 99, 5430 Wettingen

2nd floor
CHF 1’415.-
-

Why you'll love this property

Ideal for therapy or beauty

Private WC and optional shower

Lift access and parking available

Arrange a visit

Book a visit with Spörri today!

Spörri
Datomar Spörri-Treuhand AG
This description has been automatically translated from German.

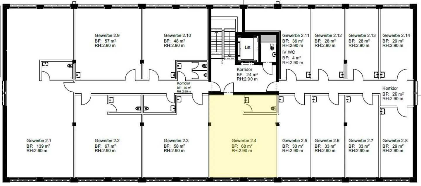
Practice/studio/cosmetics/beauty (with wc, optional shower) - 68m2 / new building [2.4]

NEW BUILDING - directly next to COOP-TÄGIPARK

Rental property with 68m2 > Room layout optional possible

> due to Novilon floor and water connection especially suitable for therapy/practice/cosmetics/beauty

Own WC in the rental property. Optional expansion with shower and changing room possible.

Lift/staircase, charging stations for cars + e-bikes, customer parking, ceiling heating including pleasant cooling function in summer.

Shopping market TägiPark next door.

Further commercial and storage spaces, ...

Property details

Available from
By agreement
Construction year
2025

Features

Parking
Elevator
Internet
Wheelchair accessible

Agency

Datomar Spörri-Treuhand AG
Ref: [T99-2.4]

Location

Tägerhardstrasse 99, 5430 Wettingen

Sources