1 / 8

Medical practice for rent - Tägerhardstrasse 99, 5430 Wettingen

1st floor
CHF 2’040.-
-

Why you'll love this property

Private restroom available

Lift access and parking

Cooling ceiling heating

Arrange a visit

Book a visit today!

Datomar Spörri-Treuhand AG
This description has been automatically translated from German.

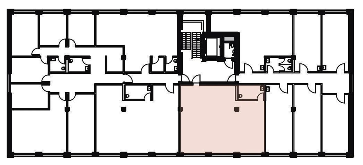
Practice/office/law firm/notary, own wc [option shower/changing room]

MODERN - NEW BUILD - directly next to COOP-TÄGIPARK

Rental property with 102m2 for

-Office-Notary-Law Firm-Practice-Therapy-Training-

Own WC in the rental property with expansion option for shower/wardrobe.

Lift/staircase, charging stations for cars + e-bikes, customer parking, ceiling heating including cooling function in summer.

Shopping market TägiPark next door.

Further commercial and storage spaces, archive rooms can be rented. > www.t99.ch

Property details

Available from
By agreement
Construction year
2025

Features

Parking
Elevator
Internet
Wheelchair accessible

Agency

Datomar Spörri-Treuhand AG
Address:Rotkreuz, Holzhäusernstrasse, 6343
Ref: G 1.4

Location

Tägerhardstrasse 99, 5430 Wettingen

Sources