Commercial for rent - Tägerhardstrasse 99, 5430 Wettingen
Why you'll love this property
Flexible room layout options
Private washbasin included
Lift access and parking available
Arrange a visit
Book a visit today!
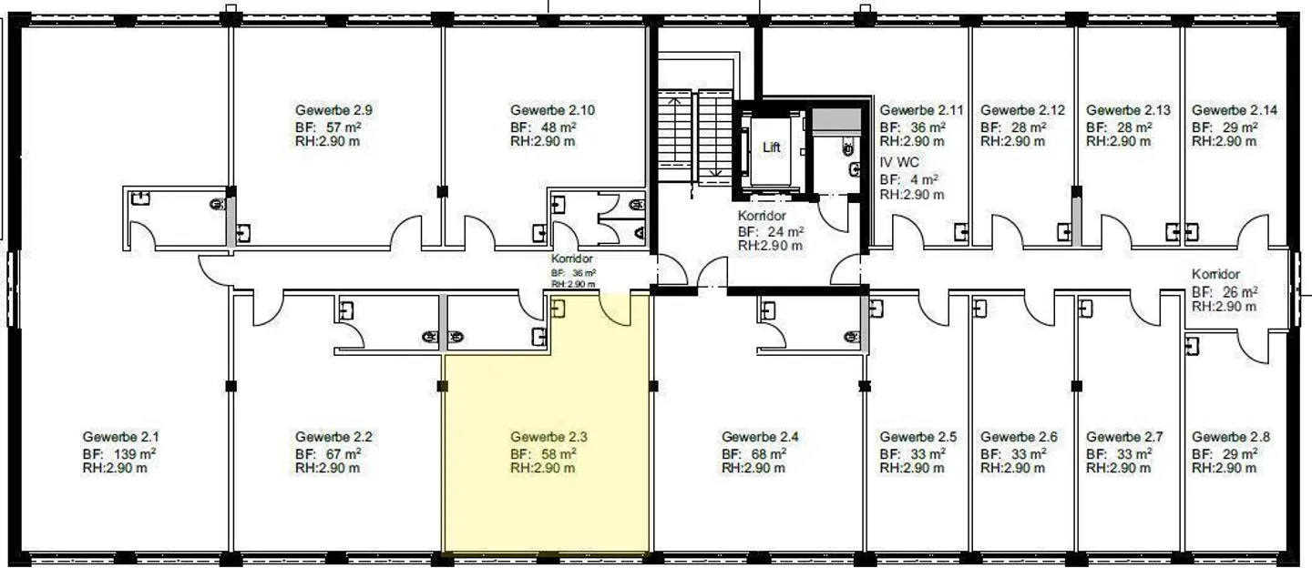
Office/practice/commercial space with sink - 58m2 on 2nd floor in new building
NEW BUILDING - MODERN - right next to COOP-TÄGIPARK
Rental property with 58m2 for
> Office-Notary-Law Firm-Practice-Therapy-Training
> Room layout optionally possible with e.g. two offices, meeting room, etc
Own sink in the rental property.
Small kitchenette, also optionally realizable in the rental property.
Lift/staircase, charging stations for cars + e-bikes, customer parking spaces, ceiling heating including cooling function in summer.
Shopping market TägiPark next door.
Further commercial and...
Costs breakdown
- Net rent
- CHF 1’215
- Additional costs
- CHF 150
- Total rent
- CHF 1’215
Property details
- Available from
- By agreement
- Construction year
- 2025



