Medical practice for rent - Tägerhardstrasse 99, 5430 Wettingen
Why you'll love this property
Flexible room layout options
Private restroom included
Lift access and parking
Arrange a visit
Book a visit today!
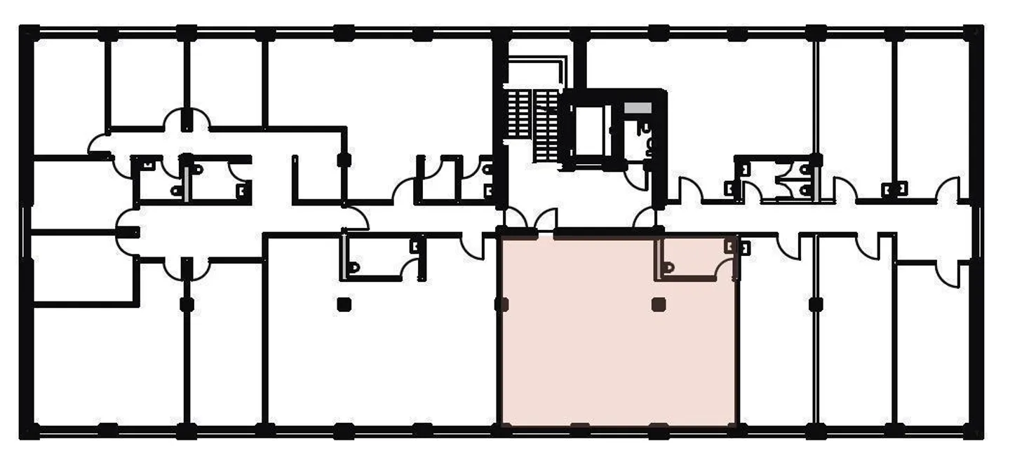
Practice/office/law firm/notary, own wc [optional shower/changing room]
MODERN - NEW BUILD - directly next to COOP-TÄGIPARK
Rental property with 102m2 for
> Office-Notary-Law Firm-Practice-Therapy-Training
> Room layout optionally possible with e.g. several offices, meeting rooms, etc
Own WC in the rental property. Optional expansion with shower and changing room possible.
Small kitchenette, also optionally realizable in the rental property.
Lift/staircase, charging stations for cars + e-bikes, customer parking spaces, ceiling heating including cooling function in s...
Costs breakdown
- Net rent
- CHF 2’040
- Additional costs
- CHF 240
- Total rent
- CHF 2’040
Property details
- Available from
- By agreement
- Construction year
- 2025



