Medical practice for rent - Tägerhardstrasse 99, 5430 Wettingen
Why you'll love this property
Flexible room layout options
Private WC and shower possible
Convenient customer parking
Arrange a visit
Book a visit with Spörri today!
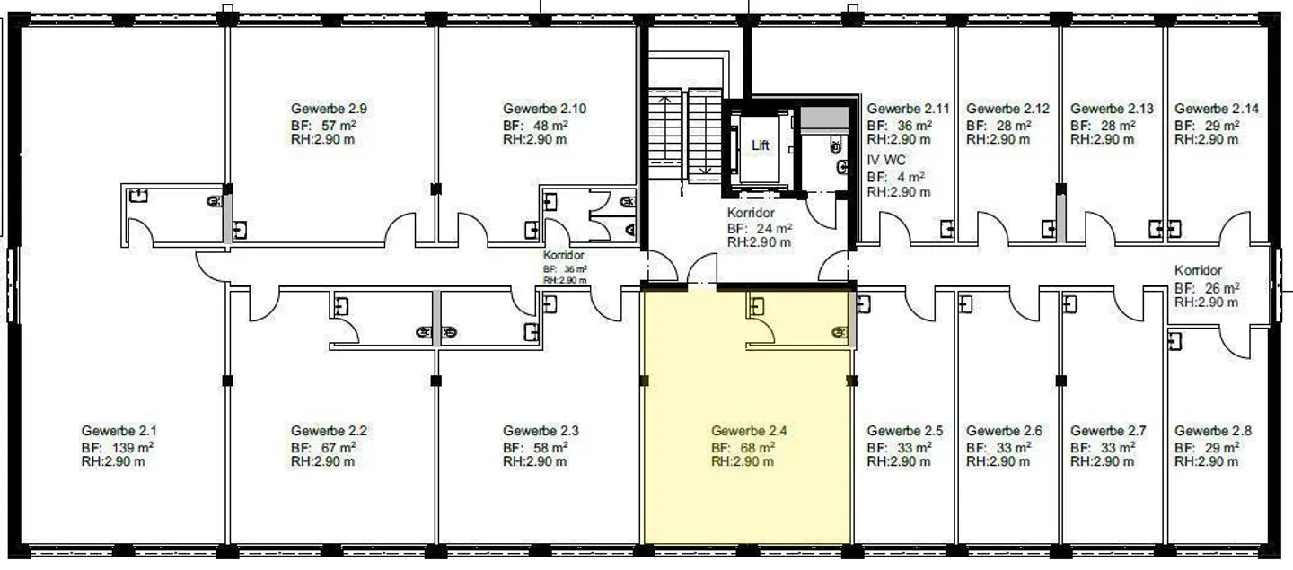
Practice/Studio/Cosmetics/Beauty (with WC, optional shower) - 68m2 / New
NEW BUILDING - directly next to COOP-TÄGIPARK
Rental property with 68m2 > Room layout optionally possible with e.g. 2 treatment rooms or offices, etc.
> Due to Novilon flooring and water connection, especially suitable for therapy/practice/cosmetics/beauty
Own WC in the rental property. Optional expansion with shower and changing room possible.
Small kitchenette, also optionally realizable in the rental property.
Lift/staircase, charging stations for cars + e-bikes, customer parking spaces, cei...
Costs breakdown
- Net rent
- CHF 1’415
- Additional costs
- CHF 175
- Total rent
- CHF 1’415
Property details
- Available from
- By agreement
- Construction year
- 2025



