1 / 3

Storage space for rent - Stöckackerstrasse 81, 3018 Bern

Ground floor
CHF 1’880.-
-

Why you'll love this property

Direct access to parking

Flexible layout options

Prime location in Bern

Arrange a visit

Book a visit with Niwy today!

Niwy Le
Von Graffenried AG
This description has been automatically translated from German.

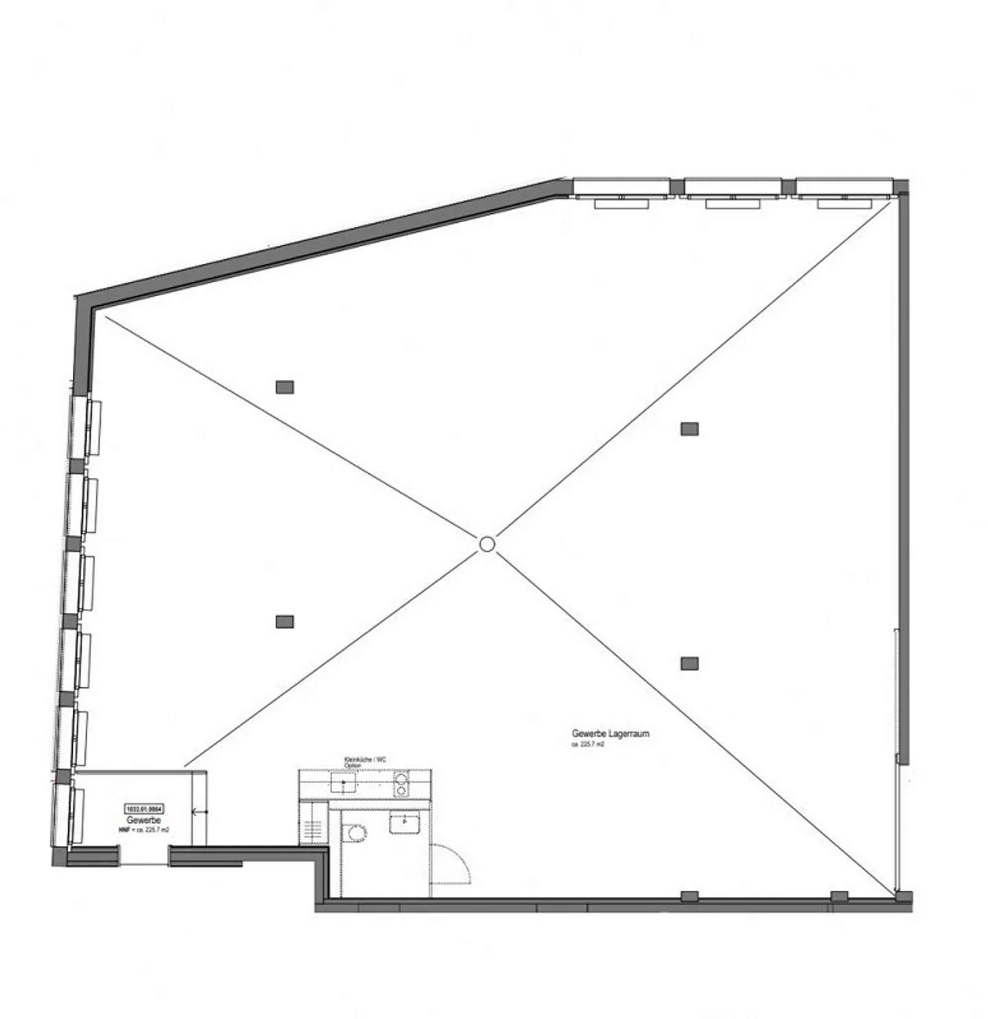
Attractive storage, office, commercial space (still) in shell construction in bern

We offer you a versatile commercial space that is ideal for craft businesses or similar trades. With its thoughtful features and prime location, this space provides optimal conditions for your business success. The commercial space is rented in shell construction, allowing you to design your future commercial premises.

Your advantages at a glance:

Direct access to the parking garage: The storage, commercial, office can be conveniently accessed with a small delivery van, allowing for easy delivery ...

Property details

Available from
By agreement

Features

Elevator

Agency

Von Graffenried AG
Address:Bern, Marktgass-Passage 3, 3011
Ref: 1033.01.0004
Online since
23/09/2025
26 days ago

Location

Stöckackerstrasse 81, 3018 Bern

Sources