Office space for rent - Fadenbrücke 8, 6374 Buochs
Why you'll love this property
Flexible space layout options
Bright and spacious areas
Modern cooling system
Arrange a visit
Book a visit with Herr today!
Attractive office and commercial spaces for rent in Buochs
Versatile commercial spaces in Buochs – available from Spring 2026
We are renting attractive spaces in shell construction in a new commercial building in Buochs from Spring 2026.
The spaces offer a lot of design freedom and can be individually tailored to your needs – ideal for office, practice, or other commercial uses.
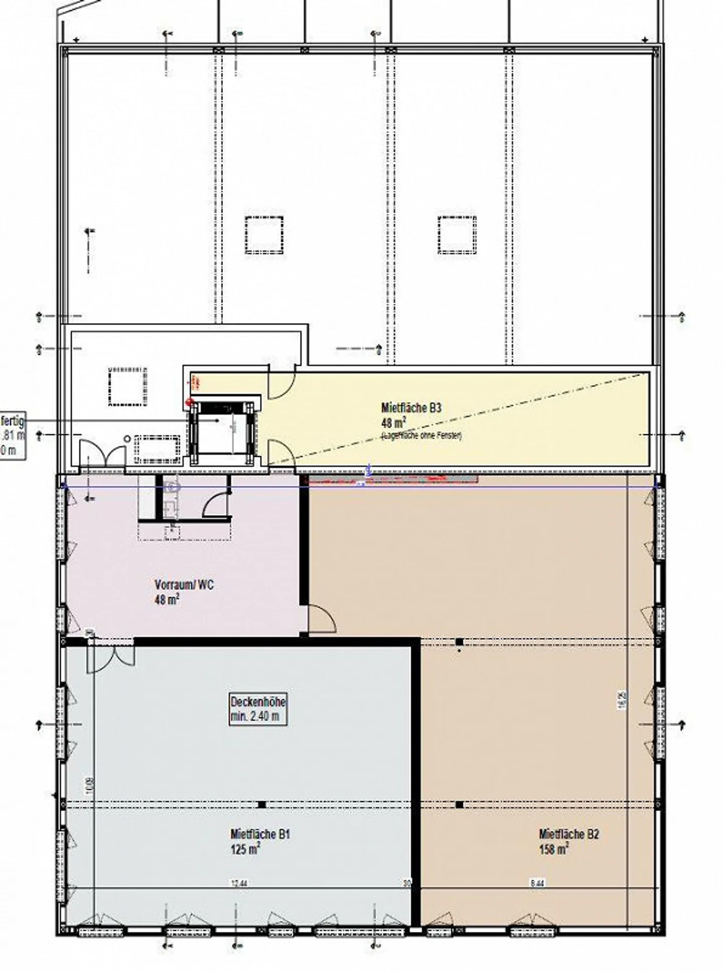
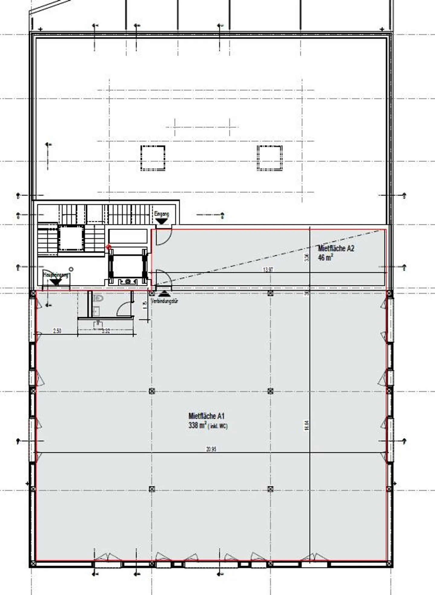
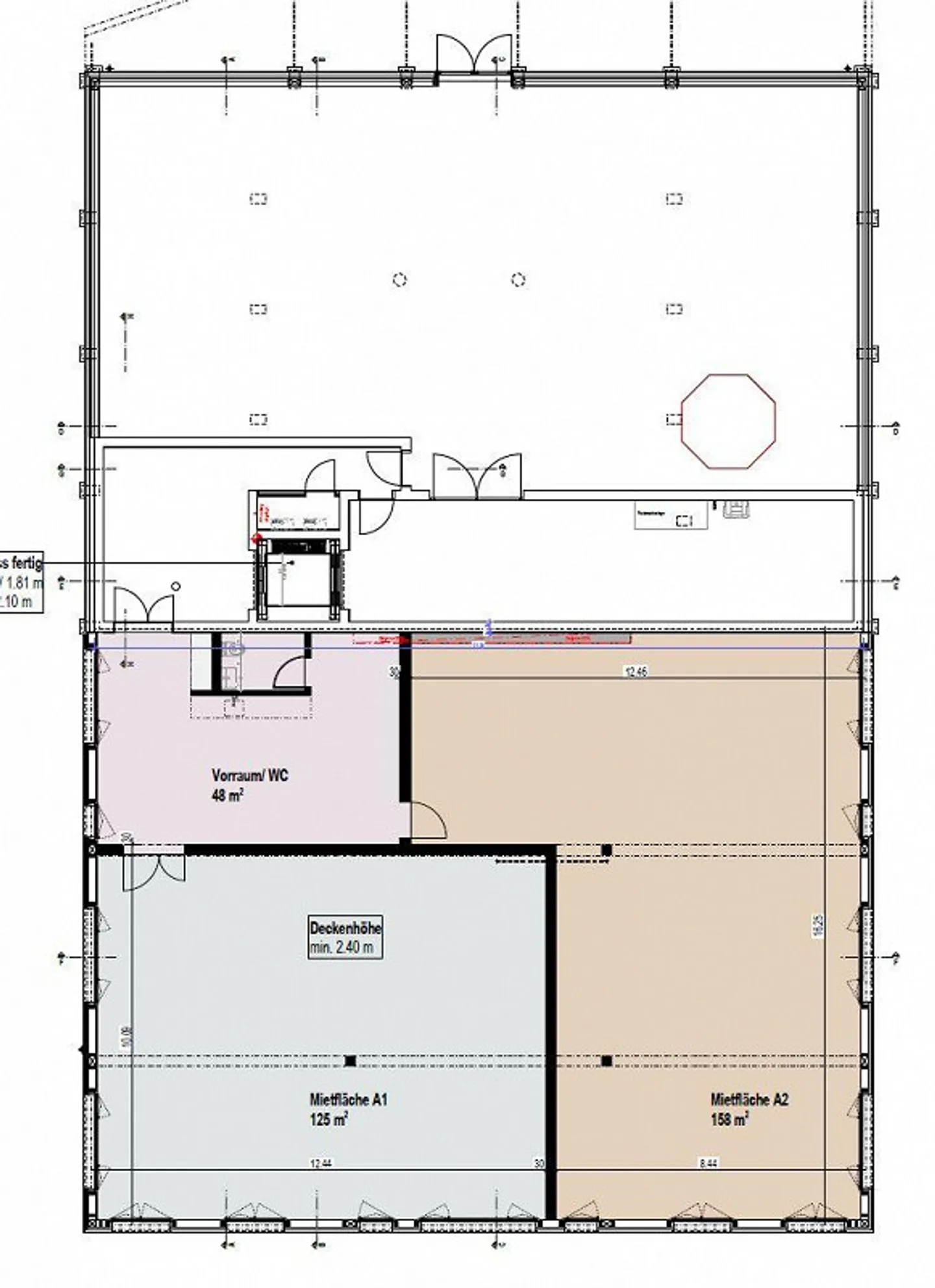
Available spaces:
2nd floor: 338 m² (including WC)
3rd floor: 338 m² (including WC)
3rd floor: 46 m² (without windows)
There is also the possibility to rent a smaller area by ...
Property details
- Available from
- By agreement
- Construction year
- 2025



