Office space for rent - Bösch 73, 6331 Hünenberg
Why you'll love this property
Shared kitchen access
Includes cleaning services
Scenic entrance area
Arrange a visit
Book a visit with Gehrig today!
Office in Bösch, Hünenberg
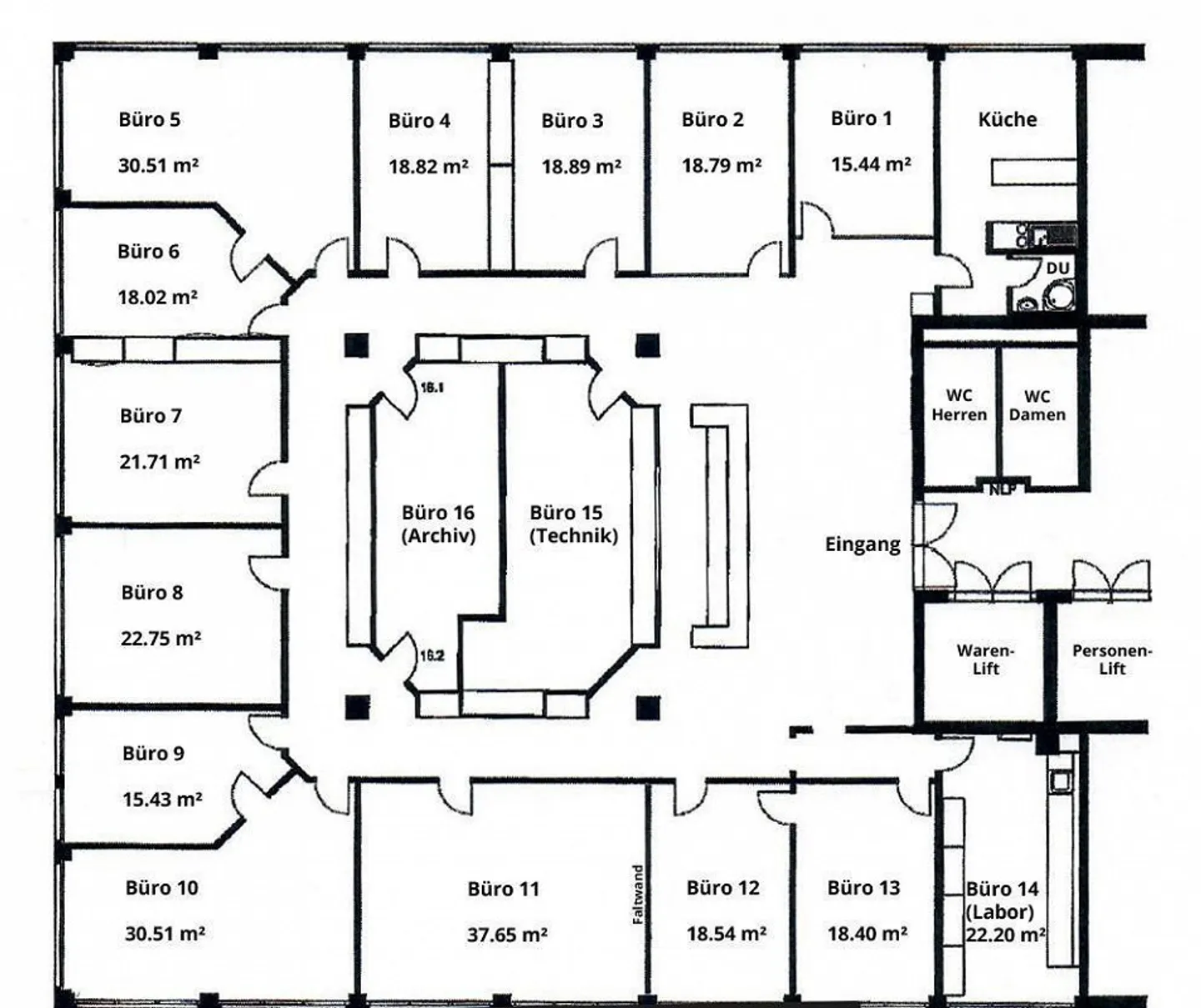
In a larger office building, we are renting this office with lake view. On the plan, it is office No. 1.
A kitchen, a shower, toilet facilities, and an entrance area are available for shared use. The rent includes additional costs as well as cleaning of the common and shared areas.
Additionally, outdoor parking spaces can be rented for CHF 60.00 per month per parking space or indoor parking spaces for CHF 120.00 per month.
For a viewing or if you have any questions, please do not hesitate to contac...
Property details
- Available from
- By agreement



