Office space for rent - Rheinstrasse 63, 7012 Felsberg
Arrange a visit
Book a visit today!
«Erstvermietung Gewerbepark Felsberg»
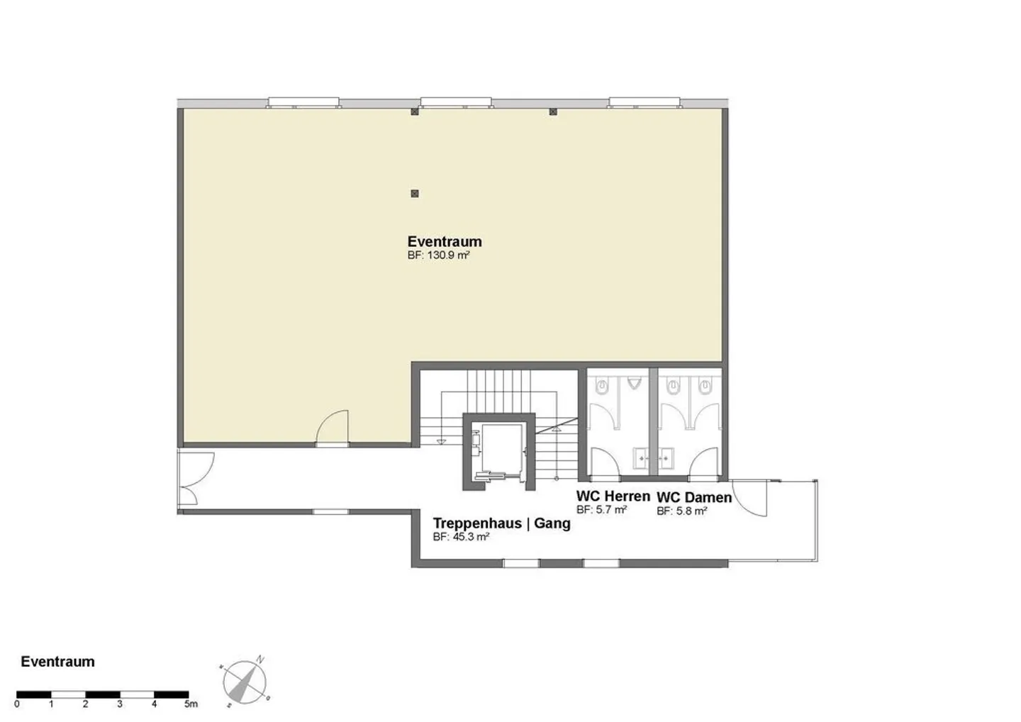
Sichern Sie sich jetzt Ihre modernen Büroräumlichkeiten im attraktiven Neubau an der Rheinstrasse 63a in Felsberg mit Bezugstermin 01.04.2026. Die Erstvermietung bietet flexible Flächen von 58.10 m2 bis 130.90 m2 , die je nach Bedarf zusammengelegt werden können.
Ihre Vorteile auf einen Blick:
* Flexibel einteilbare Büroflächen: von 58.10 m2 bis 130.9 m2
* Neubau mit vorhandenem Grundausbau : sofort bezugsbereit
* Grundausbau der Büroräumlichkeiten: Kugelgarnteppich, Bodenheizung, elektrische Ver...
Property details
- Available from
- By agreement
- Construction year
- 2026



