Office space for rent - Rue de la Croix-d'Or 6, 1204 Genève
Why you'll love this property
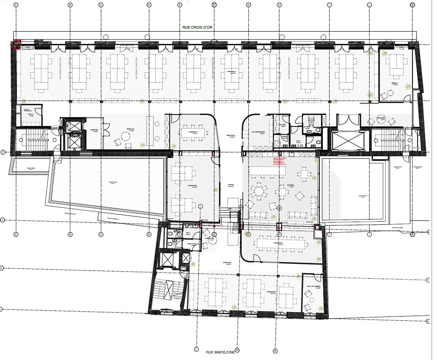
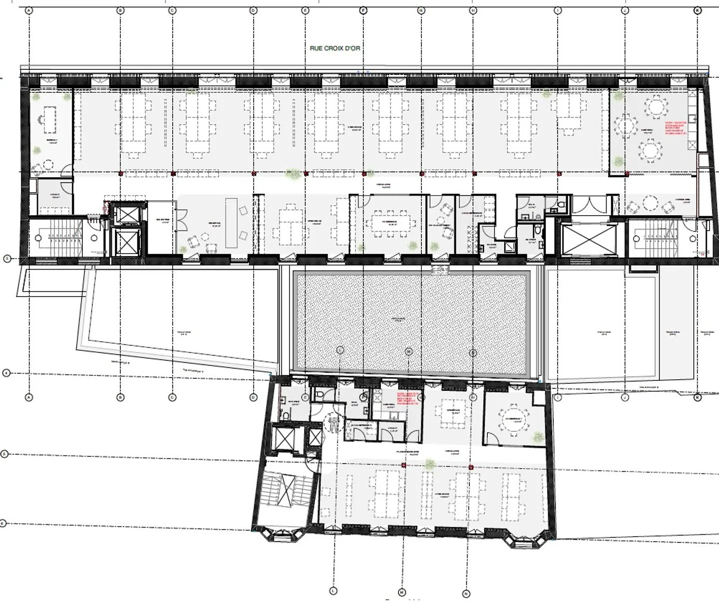
3600 m2 of flexible space
BREEAM certified building
Plug and play setup included
Arrange a visit
Book a visit with Humbert today!
"Plug and Play" Offices for Rent in an Iconic Building in the Center of Geneva
For rent - 3600 m2 of office space in a high-rise building and completely renovated. Located on Rue de la Croix d'Or, this building perfectly combines history and modernity. The working environment is ideal, in the heart of the city center and close to all amenities (public transport hubs, restaurants, services...).
The spaces are divided as follows:
- Floors of 800 m2 on the 2nd, 3rd, and 4th floors
- Rooms of 450 and 150 m2 on the 5th and 6th floors
Features of the spaces:
- Heating and cooling ...
Property details
- Available from
- By agreement
- Renovation year
- 2024
- Living surface
- 450 m²
- Usable surface
- 450 m²



