Commercial for rent - Centralweg 6, 8910 Affoltern am Albis
Why you'll love this property
High foot traffic area
Large window visibility
Attractive tenant mix
Arrange a visit
Book a visit today!
Commerce
Your space for creative business ideas in the Oberdorf shopping center
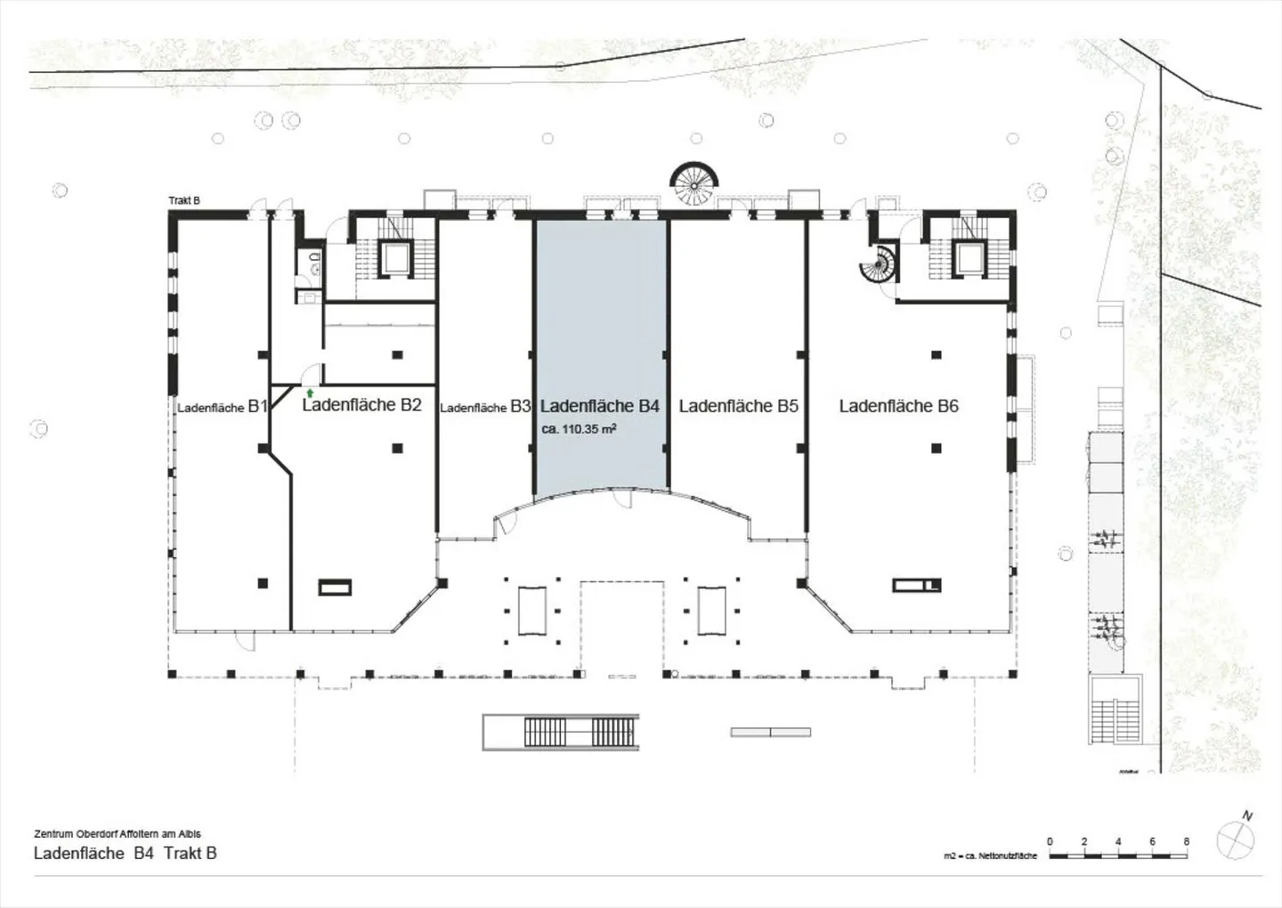
Retail / commercial space with a lot of potential in the lively Oberdorf shopping center
Available immediately in the center of Oberdorf, right in the heart of Affoltern am Albis, is a versatile retail/commercial space.
The space in shell construction offers enormous potential to implement your business idea. Thanks to the location in the shopping center with top brands like Migros, Lidl, Medbase Pharmacy, Gidor Hairdresser, S...
Property details
- Available from
- By agreement
- Living surface
- 110 m²



