Commercial for rent - Industriestrasse 57, 6300 Zug
Why you'll love this property
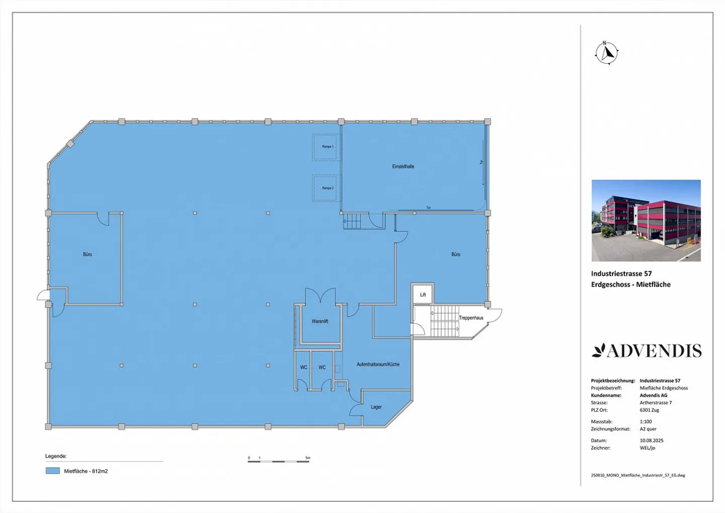
812 m² versatile space
Modern infrastructure
Easy access to highways
Arrange a visit
Book a visit with Duss today!
812 m2 commercial/office space with goods lift and ramps
At Industriestrasse 57 in Zug, you can expect flexible commercial and office spaces with 812 m² of usable space – ideal for companies in need of commercial, production, office, logistics, and/or storage.
The property at a glance
- Ground floor: 812 m² commercial space (including offices) with sectional door, two covered hydraulic loading ramps at truck height
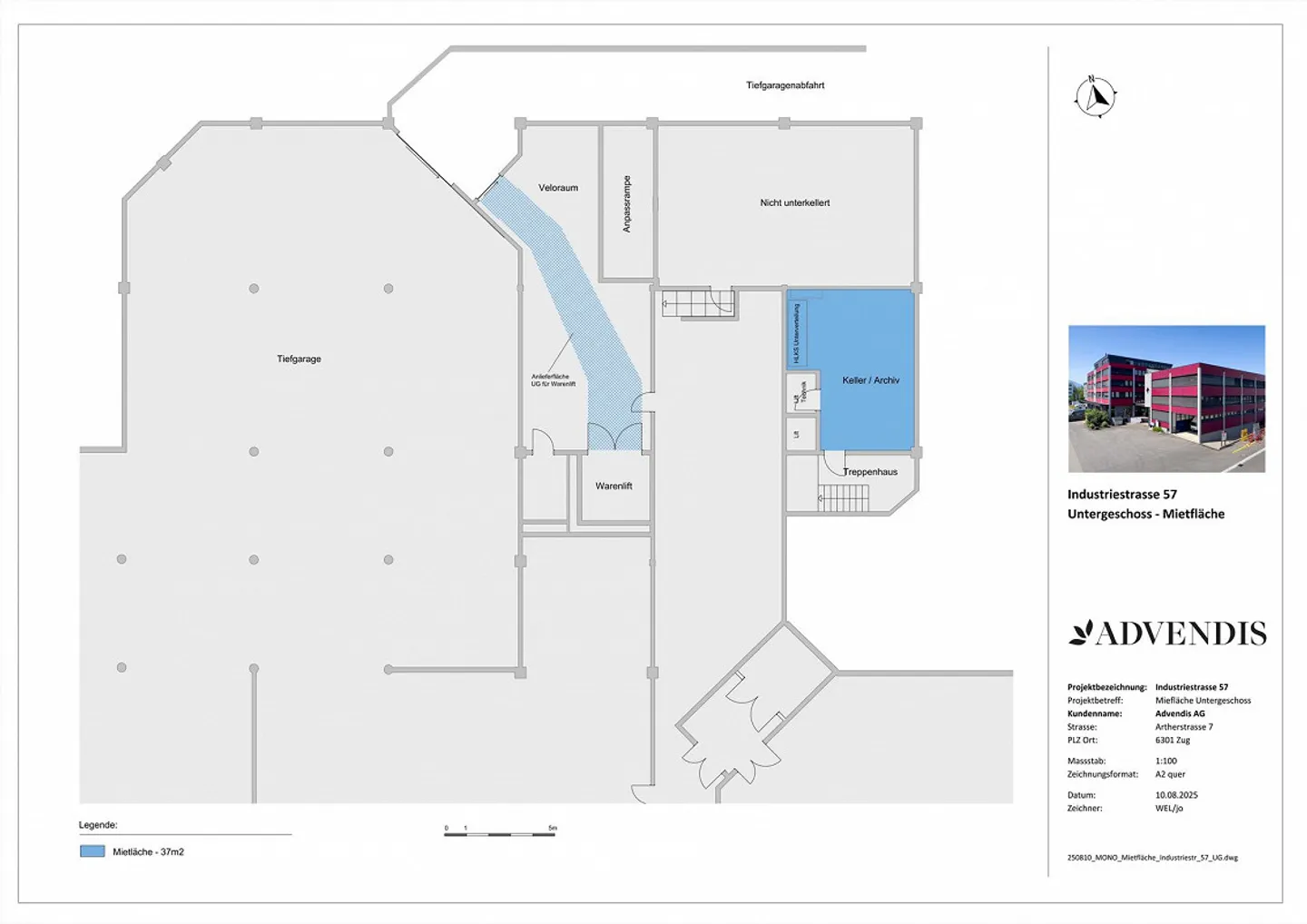
- Basement: 37 m² archive room
- 1 underground parking space & 2 outdoor parking spaces
- Goods lift (3,200 kg), passenger lift (new), vari...
Property details
- Available from
- By agreement



