Office space for rent - Aeschenvorstadt 57, 4051 Basel
Why you'll love this property
Bright and spacious layout
Flexible office design
Central location near station
Arrange a visit
Book a visit today!
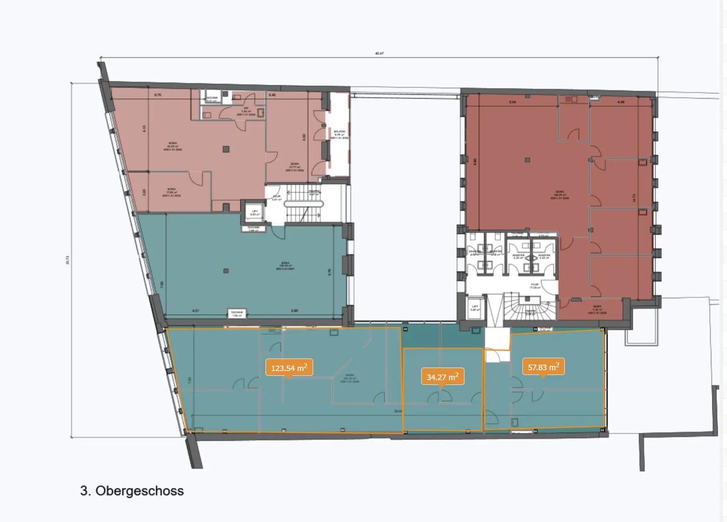
Office or Practice Room (35m2 - 125m2) between Bankverein and Aeschenplatz
Between Aeschenplatz and Bankverein, we are renting attractive and light-flooded office or practice spaces totaling 234 m2, which can be divided if necessary. (see floor plan)
Due to the optimal location in the city center and close to Basel SBB train station, you are very accessible for your clients.
We offer you the following expansion:
- Practical floor plan for office or practice use
- Flexible design of individual offices
- Built-in flooring
- Partially built-in sinks
- Ceiling lights
- Tea kitch...
Costs breakdown
- Net rent
- CHF 6’182
- Additional costs
- CHF 611
- Total rent
- CHF 6’182
Property details
- Available from
- By agreement
- Construction year
- 1938



