Shop for rent - Luzernerstrasse 52c, 6025 Neudorf
Why you'll love this property
Large display windows
Flexible interior design
Convenient bus stop access
Arrange a visit
Book a visit with Julia today!
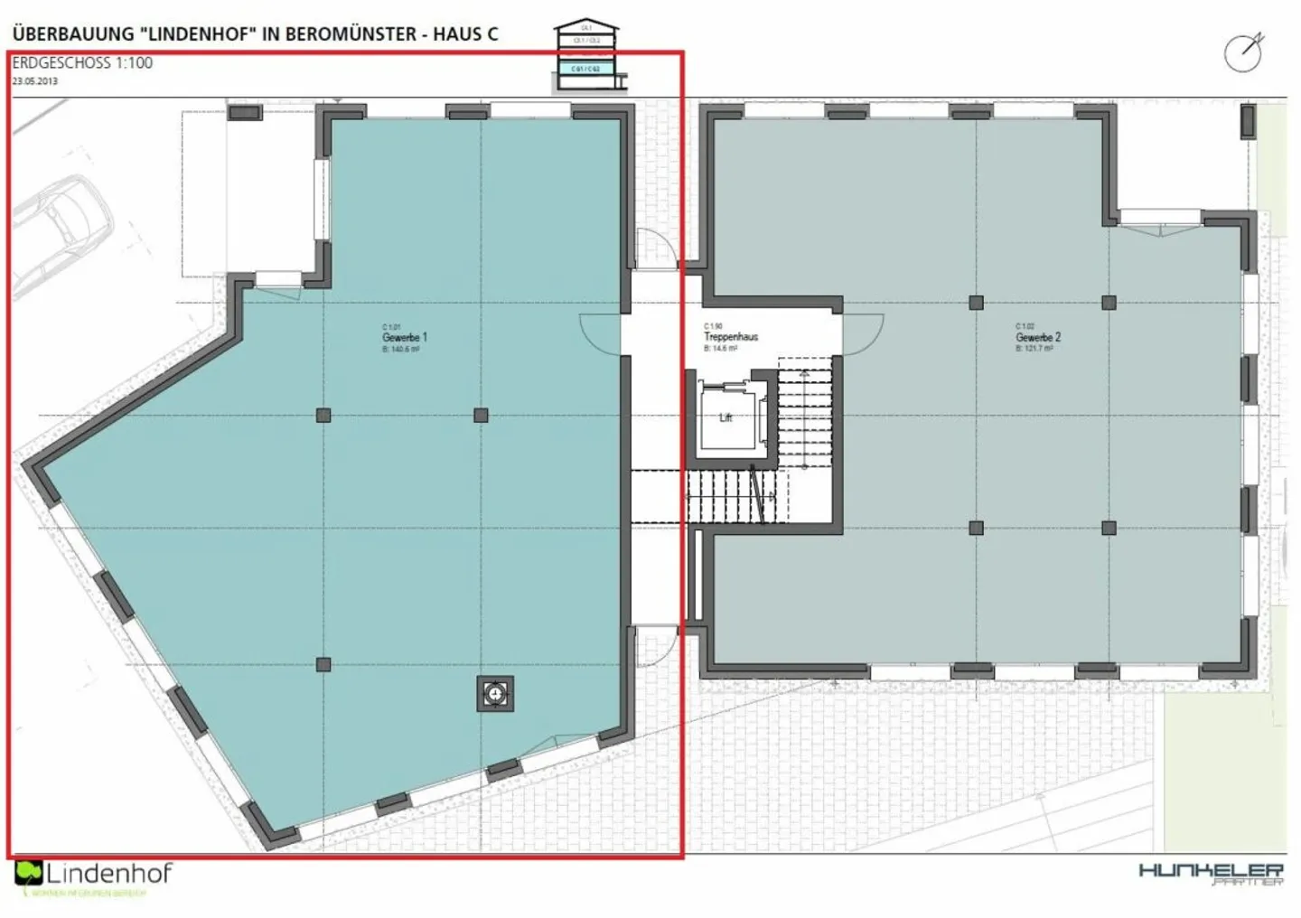
Your business in a central location in Neudorf
The commercial space is located in a highly visible area in the middle of the village. Large window areas provide plenty of light and can also be used as display or advertising windows. Directly in front of the property is the bus stop for the line Lucerne Station - Beromünster - Rickenbach/Menziken.
The office space is in a fully developed, unfurnished condition and has the following features:
- Equipped kitchen (including microwave)
- Meeting room
- Storage room with approx. 48 m2 area in the basement...
Costs breakdown
- Net rent
- CHF 3'012
- Additional costs
- CHF 300
- Total rent
- CHF 3'312
Property details
- Available from
- 25.03.2026
- Rooms
- 1
- Bathrooms
- 1
- Construction year
- 2014
- Living surface
- 140 m²




